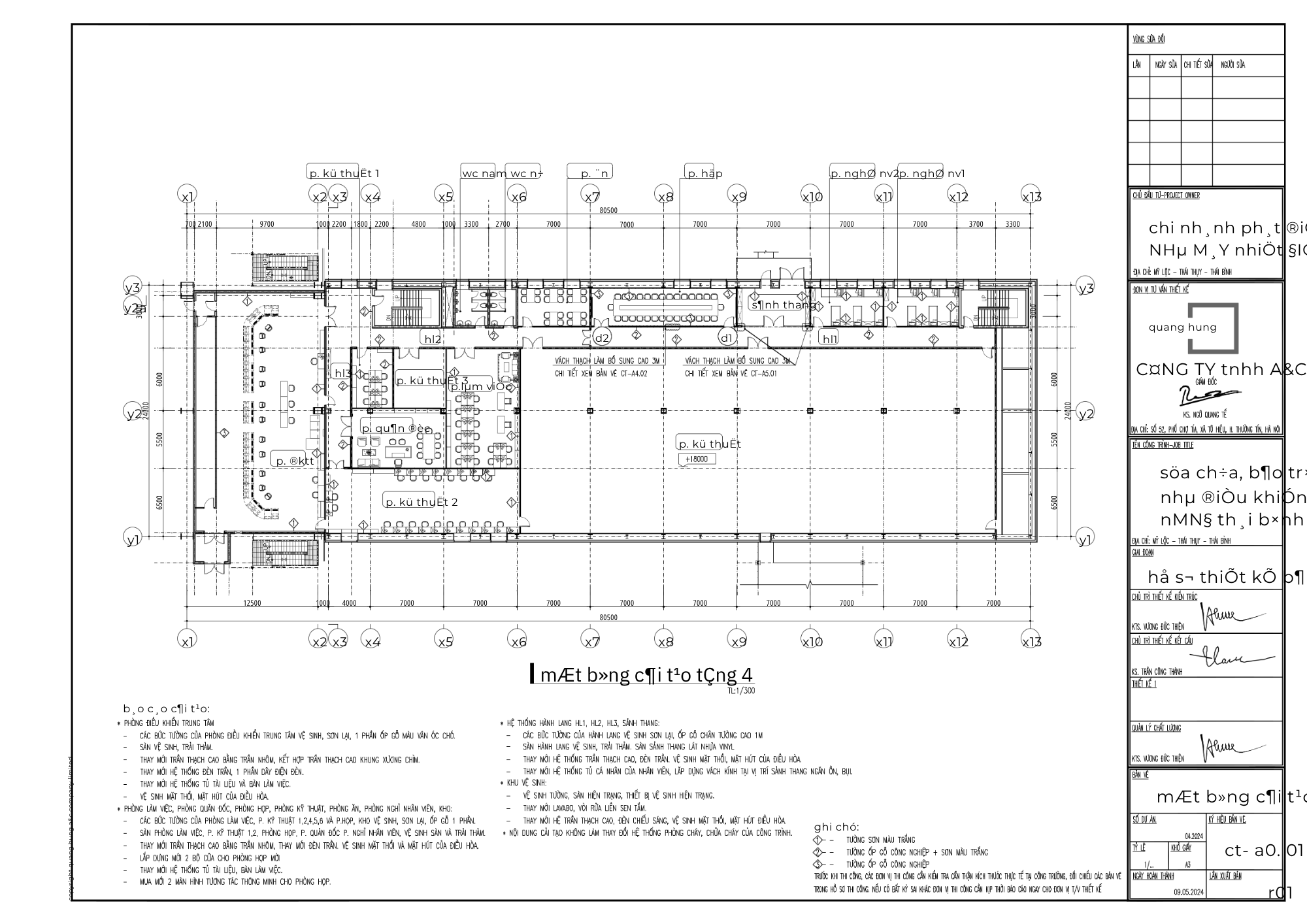
Dự án cải tạo nhà làm việc trung tâm – Nhiệt Điện Thái Bình 2 là một trong những công trình cải tạo nội thất kỹ thuật tiêu biểu do Kiến Trúc Xây Dựng Quang Hùng thực hiện. Dự án tập trung nâng cấp không gian làm việc, đáp ứng yêu cầu vận hành – quản lý – điều hành trong môi trường nhà máy điện công nghiệp, với tiêu chí an toàn, khoa học và hiệu quả lâu dài.

Xem chi tiết dự án: Tại đây
.webp)

Công trình được triển khai nhằm:
Nâng cấp không gian làm việc theo hướng hiện đại, chuyên nghiệp
Cải thiện điều kiện làm việc cho cán bộ, kỹ sư, nhân sự vận hành
Tối ưu công năng sử dụng, luồng di chuyển và khả năng quan sát
Đảm bảo tuân thủ các tiêu chuẩn an toàn – kỹ thuật – phòng cháy chữa cháy
Phòng Điều Khiển Trung Tâm là khu vực quan trọng nhất của nhà làm việc trung tâm, yêu cầu cao về kỹ thuật, công năng và tính ổn định.
Giải pháp cải tạo:
Bố trí lại không gian làm việc khoa học, tối ưu tầm nhìn hệ thống
Hoàn thiện trần – tường – sàn phù hợp môi trường vận hành liên tục
Cải tạo hệ thống chiếu sáng đảm bảo độ rọi tiêu chuẩn
Sử dụng vật liệu bền, chống bụi, dễ bảo trì
Kết quả sau cải tạo giúp không gian gọn gàng, tập trung và nâng cao hiệu quả điều hành.


Phòng QĐ được cải tạo theo hướng nghiêm túc – rõ ràng – tiện dụng, phù hợp với chức năng quản lý và lưu trữ hồ sơ.
Nội dung cải tạo:
Sắp xếp lại mặt bằng làm việc
Hoàn thiện nội thất cơ bản, đồng bộ phong cách chung
Đảm bảo ánh sáng và sự yên tĩnh cần thiết cho công tác quản lý
Không gian phòng làm việc được cải tạo theo tiêu chí thoải mái nhưng kỷ luật, phù hợp đặc thù môi trường nhà máy.
Giải pháp chính:
Bố trí bàn làm việc khoa học, tối ưu diện tích
Cải tạo trần – sàn – tường, giảm tiếng ồn
Tăng cường ánh sáng tự nhiên kết hợp chiếu sáng nhân tạo hợp lý
Phòng họp được cải tạo nhằm phục vụ tốt các hoạt động:
Họp điều hành
Giao ban kỹ thuật
Trao đổi chuyên môn
Nội dung cải tạo:
Tổ chức không gian rõ ràng, trang nghiêm
Cải tạo trần, tường tiêu âm
Hệ thống chiếu sáng phù hợp cho họp và trình chiếu
Bố trí nội thất gọn gàng, thuận tiện sử dụng

Sảnh là khu vực tạo ấn tượng đầu tiên khi bước vào nhà làm việc trung tâm.
Giải pháp cải tạo sảnh:
Hoàn thiện lại bề mặt sàn, tường
Bố trí không gian thông thoáng, dễ định hướng
Tạo hình ảnh chuyên nghiệp – chỉn chu – hiện đại

Hành lang được cải tạo nhằm đảm bảo:
Lưu thông thuận tiện
An toàn khi di chuyển
Đồng bộ thẩm mỹ toàn khu
Nội dung chính:
Cải tạo trần – sàn – tường
Bố trí hệ thống chiếu sáng liên tục, rõ ràng
Đảm bảo tiêu chuẩn an toàn và PCCC
Trong quá trình cải tạo, Kiến Trúc Xây Dựng Quang Hùng đặc biệt chú trọng:
Thi công đúng quy trình kỹ thuật
Đảm bảo an toàn lao động trong môi trường nhà máy
Hạn chế ảnh hưởng đến hoạt động vận hành hiện hữu
Kiểm soát chất lượng từng hạng mục
Mọi công đoạn đều được triển khai theo kế hoạch rõ ràng, phối hợp chặt chẽ với đơn vị quản lý để đảm bảo tiến độ và hiệu quả.
Dự án cải tạo nhà làm việc trung tâm – Nhiệt Điện Thái Bình 2 đã:
Nâng cấp toàn diện không gian làm việc
Đáp ứng tốt yêu cầu kỹ thuật và vận hành
Mang lại môi trường làm việc chuyên nghiệp, an toàn
Góp phần nâng cao hiệu quả quản lý và điều hành
Công trình là minh chứng cho năng lực thi công cải tạo công trình kỹ thuật – hành chính của Kiến Trúc Xây Dựng Quang Hùng trong các dự án quy mô và yêu cầu cao.