



Mr Hiếu – Biệt Thự Sân Vườn 2.5 Tầng Hiện Đại
Xem chi tiết dự án: Tại đây


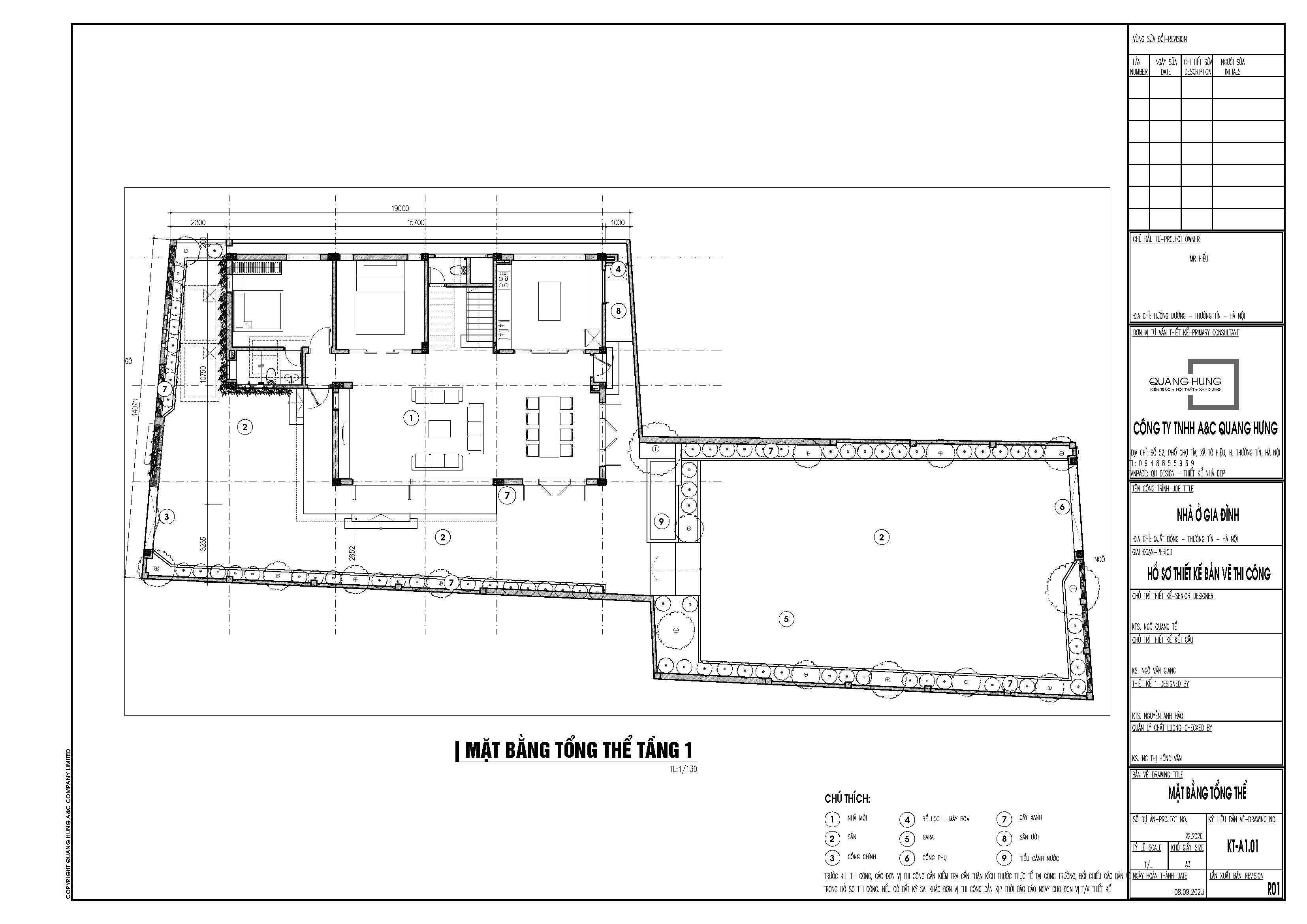
Công trình được thiết kế theo phong cách hiện đại với các khối vuông vức, rõ ràng, tạo cảm giác chắc chắn nhưng không nặng nề nhờ cách xử lý mảng xanh thông minh. Ban công các tầng được bố trí cây xanh liên tục, đóng vai trò như lớp đệm sinh thái giúp điều hòa nhiệt độ và tăng tính thẩm mỹ cho tổng thể.
Tông màu trắng – xám trung tính kết hợp vật liệu đá ốp và kính lớn mang lại vẻ đẹp sang trọng, bền vững, phù hợp với xu hướng kiến trúc biệt thự hiện đại.



\
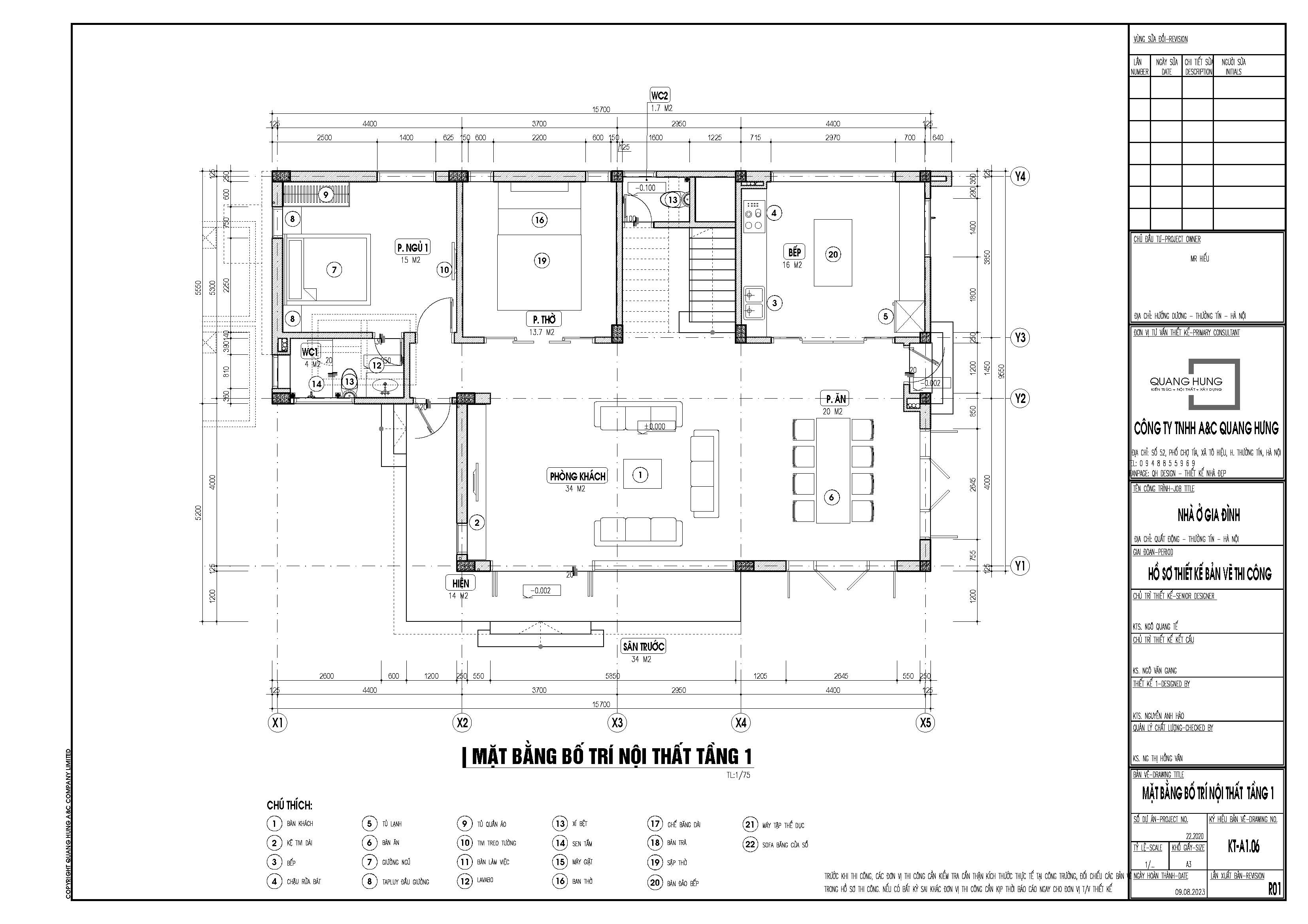
Phòng khách được thiết kế theo không gian mở, liên hệ trực tiếp với khu vực sân vườn bên ngoài thông qua hệ thống cửa kính lớn. Bộ sofa chữ L gam màu trung tính kết hợp bàn trà đá mang đến cảm giác thoải mái, hiện đại và tinh tế.
Trần nhà sử dụng quạt trần kết hợp đèn trần, cường độ tối ưu vừa đảm bảo thẩm mỹ. Mảng tường TV ốp đá và gỗ tạo điểm nhấn sang trọng cho không gian tiếp khách.

Khu vực bếp và bàn ăn được bố trí liền mạch, tạo sự kết nối giữa các thành viên trong gia đình. Bàn ăn dài kết hợp hệ thống đèn thả tròn hiện đại tạo điểm nhấn thị giác, đồng thời mang lại cảm giác ấm cúng cho mỗi bữa ăn.
Thiết kế ưu tiên ánh sáng tự nhiên, giúp không gian luôn thông thoáng và dễ chịu.

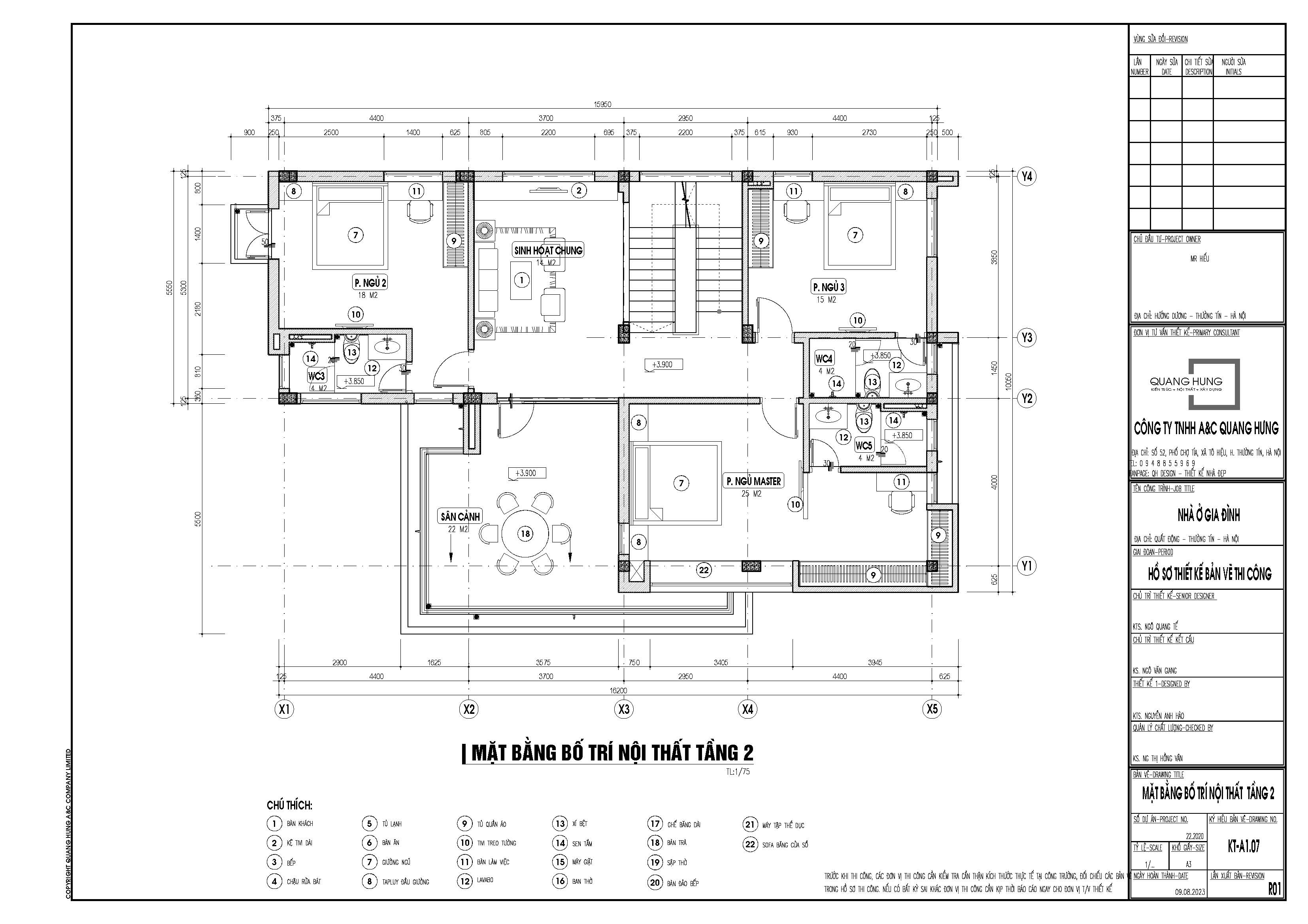
Phòng thờ được thiết kế đặc biệt, sử dụng nội thất gỗ trầm màu, hoa văn tinh giản nhưng vẫn đảm bảo được trang nghiêm cần thiết. Không thể xử lý nhẹ nhàng nhẹ nhàng nhẹ nhàng nhẹ nhàng nhẹ nhàng nhẹ nhàng nhẹ nhàng, tạo cảm giác tĩnh tại, phù hợp với yếu tố tâm linh và truyền thống gia đình Việt.
Biệt thự sân vườn 2,5 tầng của anh Hiếu là sự kết hợp hài hòa giữa:
Mỗi khu vực đều được tính toán kỹ thuật lưỡng mang lại trải nghiệm thoải mái thoải mái thoải mái thoải mái thoải mái, thư giãn, đúng tinh thần “nhà là nơi để trở về”.

Công trình không chỉ đáp ứng nhu cầu sinh hoạt của gia đình mà còn có thể hiện gu thẩm mỹ hiện đại, chỉ chu của gia chủ. Đây là một mẫu biệt thự lý tưởng cho những ai yêu thích không gian sống xanh, thoáng đãng và bền vững theo thời gian.




