|
Liên hệ |
0986464199 |
| Đánh giá |
|
| Có sẵn: | Còn hàng |
MÔ TẢ SẢN PHẨM
Biệt thự 2 tầng mái Nhật. 12x11m, 3 phòng ngủ và không gian nhà 3 gian truyền thống
Biệt thự 2 tầng hiện đại này mang đến không gian sống sang trọng, tiện nghi và thoáng đãng. Được thiết kế với các phòng chức năng rộng rãi, 4 phòng ngủ, không gian sân vườn xanh mát, đây là lựa chọn hoàn hảo cho những gia đình mong muốn một ngôi nhà hiện đại nhưng vẫn đầy đủ tiện nghi.
Biệt thự 2 tầng này có diện tích rộng rãi, với thiết kế mở và sử dụng nhiều cửa sổ lớn để tận dụng ánh sáng tự nhiên. Sự kết hợp giữa vật liệu hiện đại và các chi tiết trang trí tinh tế tạo nên vẻ đẹp thanh thoát cho toàn bộ công trình.
Chủ đầu tư: Mr. Khỏe
Số tầng: 2 tầng
Số phòng ngủ: 4 phòng ngủ
Năm hoàn thiện: 2023
Mặt tiền biệt thự sử dụng phong cách hiện đại với các đường nét tinh tế, không quá cầu kỳ nhưng vẫn toát lên sự sang trọng. Các chi tiết như cửa sổ kính lớn, ban công xanh mát và hệ thống chiếu sáng ngoài trời giúp không gian bên ngoài thêm phần ấn tượng.
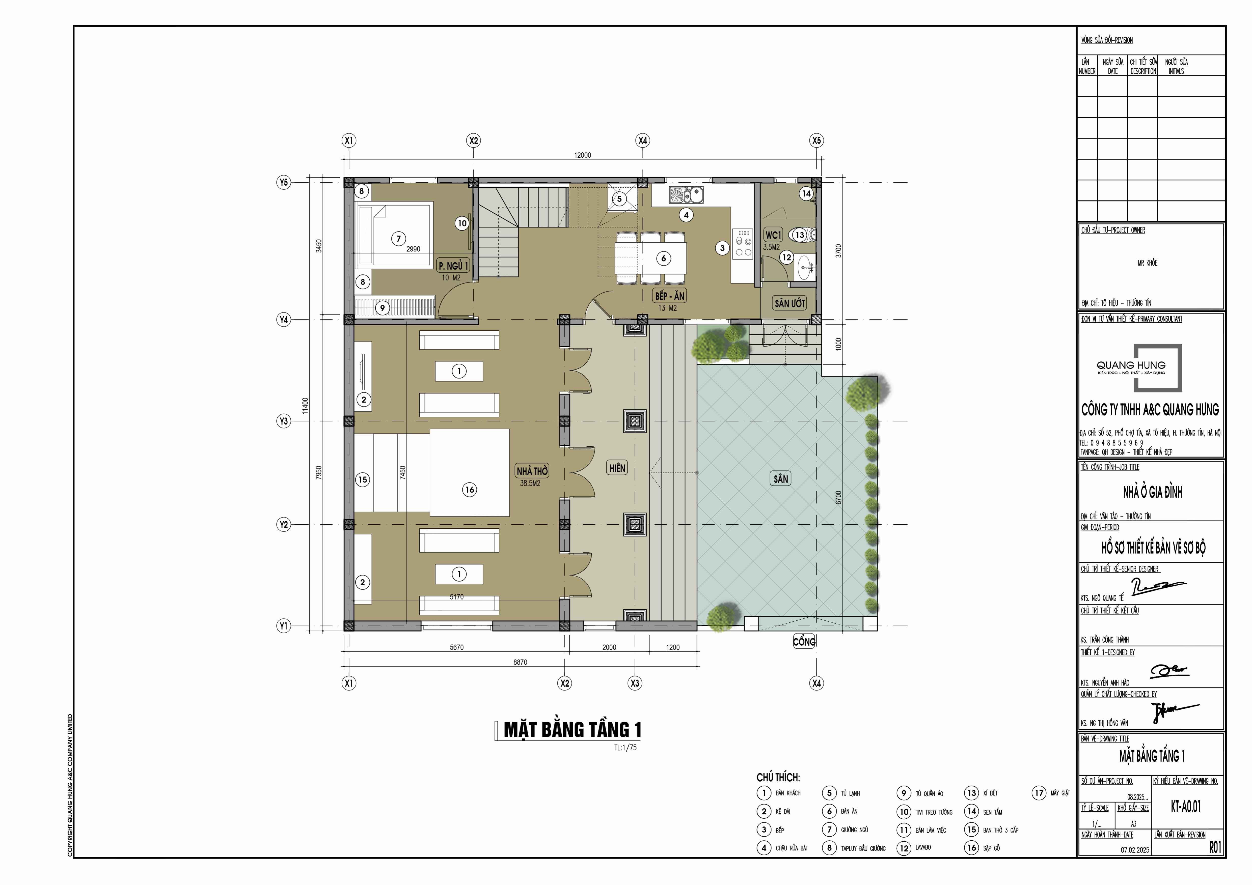
Tầng 1 được thiết kế với phòng khách rộng rãi, phòng ăn và bếp theo không gian mở. Phòng ngủ ở tầng 1 được bố trí hợp lý, tiện lợi cho việc sinh hoạt gia đình. Mặt bằng tầng 1 có không gian sân vườn giúp không khí trong lành, dễ chịu hơn.

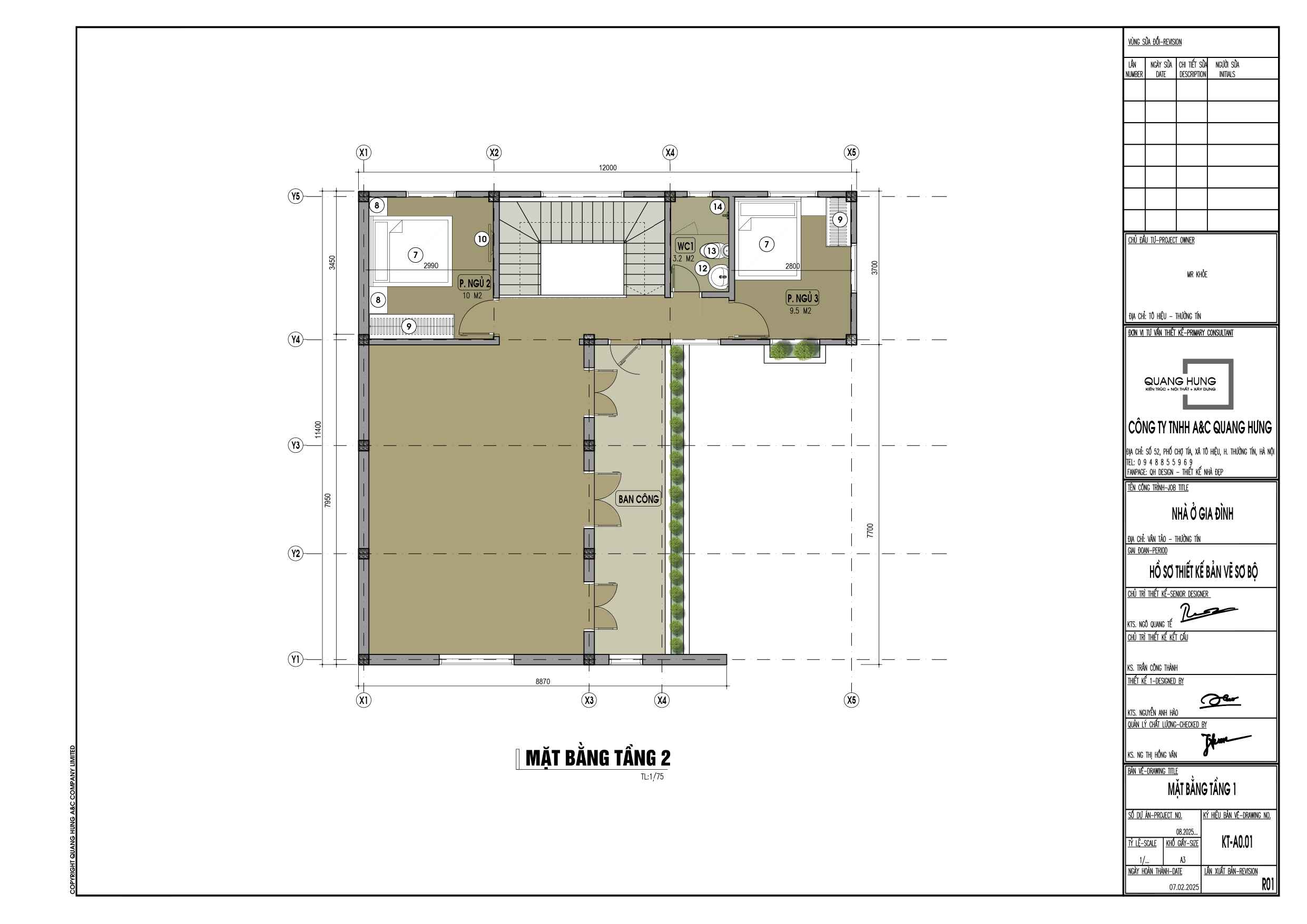
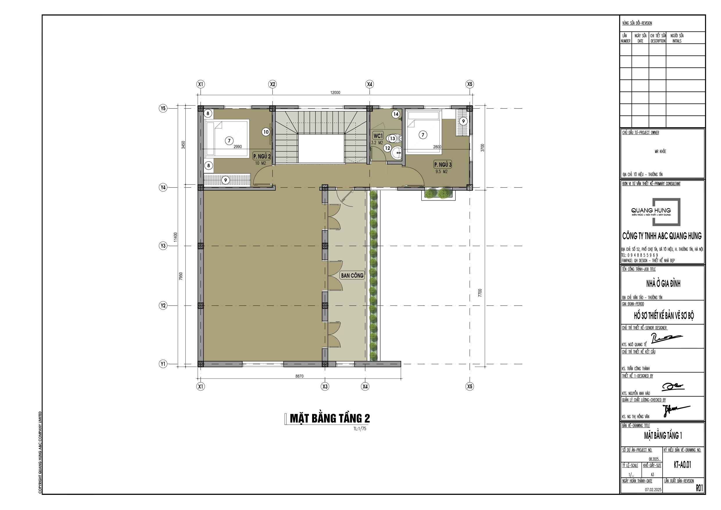
Tầng 2 bao gồm 3 phòng ngủ, mỗi phòng đều được thiết kế tinh tế với cửa sổ lớn giúp mang lại không gian sáng và thoáng đãng. Các phòng ngủ đều được bố trí sao cho không gian riêng tư và thư giãn cho gia đình.

Biệt thự có không gian sân vườn rộng rãi, trồng nhiều cây xanh, tạo một môi trường sống gần gũi với thiên nhiên. Không gian này là nơi lý tưởng để gia đình có thể thư giãn, tổ chức các buổi tiệc ngoài trời hay những phút giây sum vầy bên nhau.

Biệt thự 2 tầng hiện đại này là sự lựa chọn hoàn hảo cho gia đình muốn sở hữu một không gian sống sang trọng, tiện nghi và gần gũi với thiên nhiên. Với thiết kế thông minh, tinh tế và vật liệu chất lượng cao, đây chắc chắn là ngôi nhà lý tưởng để bạn và gia đình tận hưởng cuộc sống.
Giải pháp thiết kế thực tế
Thiết kế dựa trên nhu cầu sinh hoạt của gia đình, không chỉ đẹp mà còn tiện nghi khi sử dụng lâu dài.
Hạn chế phát sinh chi phí
Tư vấn rõ phương án ngay từ đầu, giúp gia chủ kiểm soát ngân sách và tránh chi phí ngoài kế hoạch.
Thi công bám sát thiết kế
TĐảm bảo tính đồng bộ giữa bản vẽ và công trình thực tế, hạn chế sai lệch khi triển khai.
ĐĂNG KÝ BÁO GIÁ