MÔ TẢ SẢN PHẨM
Biệt thự vườn 1 tầng mái nhật

Mẫu biệt thự vườn 1 tầng hiện đại này được thiết kế theo xu hướng sống xanh, tối giản nhưng vẫn đảm bảo tiện nghi. Công trình phù hợp với gia đình Việt yêu thích không gian rộng rãi, gần gũi thiên nhiên.
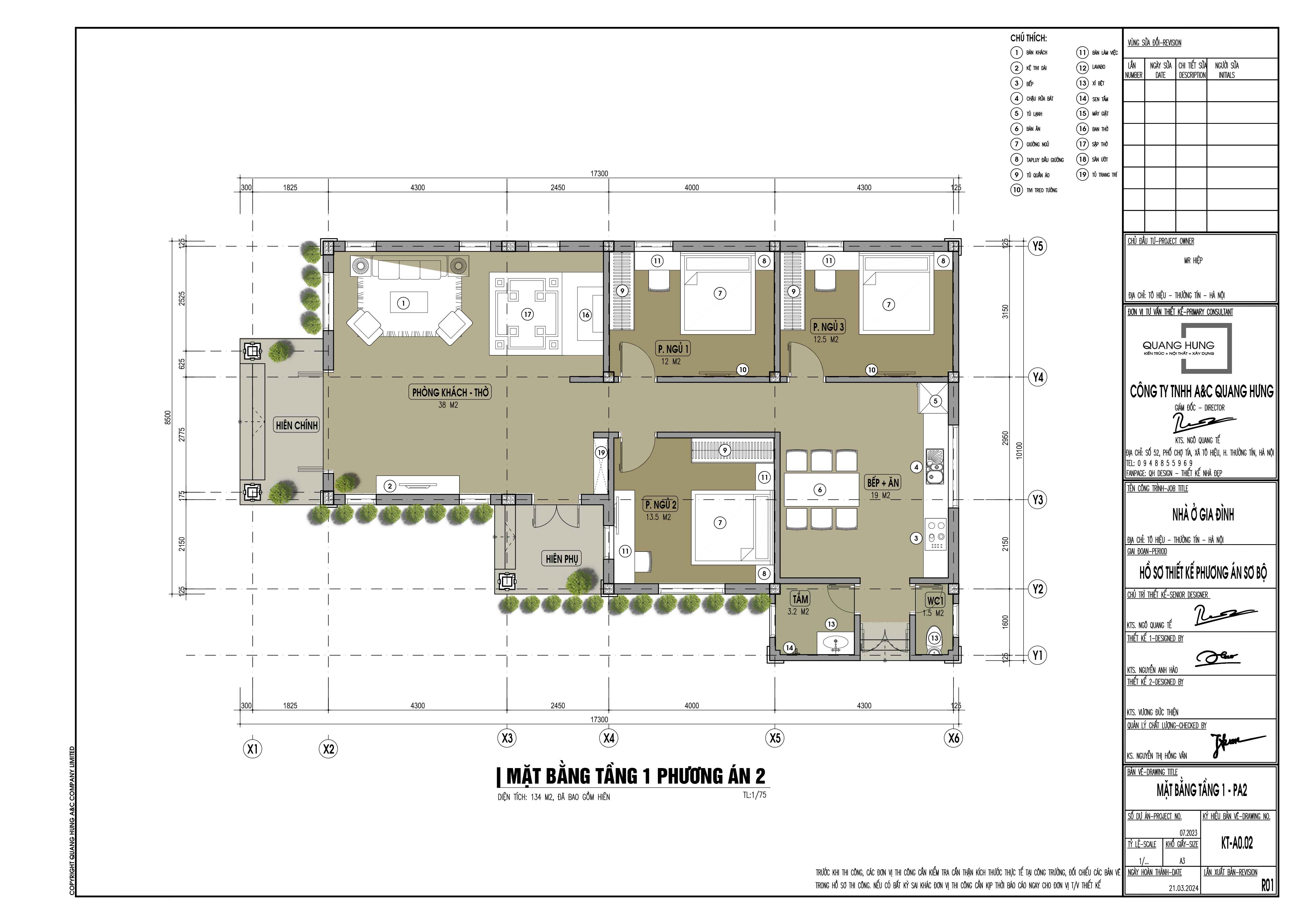
Diện tích xây dựng: ~134 m²
Kích thước: 17,3m x 8,6m
Công năng: 1 phòng khách, 3 phòng ngủ, bếp + ăn, 2 khu vệ sinh
Phong cách: hiện đại kết hợp Mái Thái
Sân vườn: chiều rộng, hoạt động
Đây là đơn vị lý tưởng cho các vùng đất ven, nông thôn hay nhà nghỉ dưỡng cuối tuần.
Thiết kế mang đậm dấu ấn biệt thự sân Thái hiện đại , tối ưu cả thẩm mỹ và công năng:
Mái Thái giật cấp giúp thoát nước nhanh, chống nóng hiệu quả
Hệ cột vuông chắc chắn, đá tăng tính sang trọng
Cửa sổ trợ giúp lấy ánh sáng tự nhiên và mở rộng không gian
Tông màu trung tính (màu trắng – xám – nâu) bền đẹp theo thời gian
Tổng thể công trình mang đến cảm giác thanh lịch – hiện đại – gần gũi thiên nhiên .

Thiết kế sản phẩm được sử dụng tối ưu theo thói quen sinh hoạt của gia đình Việt:
Không gian trung tâm, rộng rãi
Kết nối trực tiếp chính và sân vườn
Thiết kế gọn gàng, tiện nghi
Thuận tiện cho hoạt động sinh hoạt hàng ngày
Phòng ngủ 1: ~12 m²
Phòng ngủ 2: ~13,5 m²
Phòng ngủ 3: ~12.5 m2
→ Đảm bảo riêng tư và thông thoáng
WC: ~1,75 m²
Phòng tắm: ~3.2 m²
→ Tách biệt khoa học, dễ sử dụng
Nút cấu trúc chính được nhấn
Hỗ trợ tăng cường linh hoạt
Sân rộng: đỗ xe, trồng cây, thư giãn
✅ Mức tối ưu về khả năng của thiết kế diện tích ~134m²
✅ Không gian sống thoáng đãng, gần gũi thiên nhiên
✅ Phù hợp gia đình nhiều thế hệ (không cầu thang)
✅ Xây dựng phí
✅ Công việc này được thực hiện dễ dàng, thời gian hoàn thành nhanh chóng
Tuy nhiên, việc xây dựng các phụ thuộc vào khu vực và vật liệu có thể được tính toán:
Nguyên phần: ~3.5 – 4 triệu/m²
Hoàn thiện: ~5.5 – 7 triệu/m2
Tổng chi phí dự kiến: ~750 triệu – 1 tỷ đồng
Không gian sống thoải mái, không bị giới hạn như nhà phố
Gắn kết thiên nhiên, tốt cho sức khỏe tinh thần
Phù hợp xu hướng sống “chậm” và bền vững
Giá trị sử dụng
Chúng tôi cung cấp giải pháp:
Thiết kế kiến trúc theo yêu cầu
Ưu tiên & tối đa chi phí
Hồ sơ kỹ thuật đầy đủ, dễ thi công
Liên hệ ngay để được tư vấn mẫu nhà phù hợp nhất với diện tích và ngân sách của bạn.
Mẫu biệt thự vườn 1 tầng 3 phòng ngủ hiện đại không chỉ đáp ứng nhu cầu sinh hoạt mà còn mang đến một không gian sống lý tưởng – nơi mỗi ngày trôi đều là trải nghiệm thư thái.
Giải pháp thiết kế thực tế
Thiết kế dựa trên nhu cầu sinh hoạt của gia đình, không chỉ đẹp mà còn tiện nghi khi sử dụng lâu dài.
Hạn chế phát sinh chi phí
Tư vấn rõ phương án ngay từ đầu, giúp gia chủ kiểm soát ngân sách và tránh chi phí ngoài kế hoạch.
Thi công bám sát thiết kế
TĐảm bảo tính đồng bộ giữa bản vẽ và công trình thực tế, hạn chế sai lệch khi triển khai.
ĐĂNG KÝ BÁO GIÁ