MÔ TẢ SẢN PHẨM
Nhà phố 2 tầng. 10x10m, 3 phòng ngủ.
Biệt thự 2 tầng luôn là lựa chọn hàng đầu của các gia đình hiện đại, với không gian rộng rãi, sang trọng và tiện nghi. Với diện tích xây dựng lý tưởng và bố trí hợp lý, mẫu biệt thự này sẽ là lựa chọn lý tưởng cho những ai tìm kiếm một không gian sống thoải mái, đồng thời vẫn giữ được sự tinh tế và hiện đại.
Diện tích xây dựng: 10x10m
Số tầng: 2 tầng
Số phòng ngủ: 3 phòng ngủ
Phong cách thiết kế: Hiện đại, tối giản nhưng đầy đủ tiện nghi
Vị trí: Nhà nằm trong khu vực ngõ nhỏ, thuận tiện cho việc sinh hoạt và di chuyển
Với thiết kế độc đáo và nổi bật, mặt tiền của biệt thự này thu hút ánh nhìn ngay từ cái nhìn đầu tiên. Những chi tiết hiện đại được kết hợp hài hòa với màu sắc trung tính, tạo nên một không gian sang trọng nhưng vẫn gần gũi. Tường gạch đỏ kết hợp cùng hệ thống cửa kính lớn và lan can sắt nghệ thuật mang đến vẻ đẹp thanh thoát cho ngôi nhà.
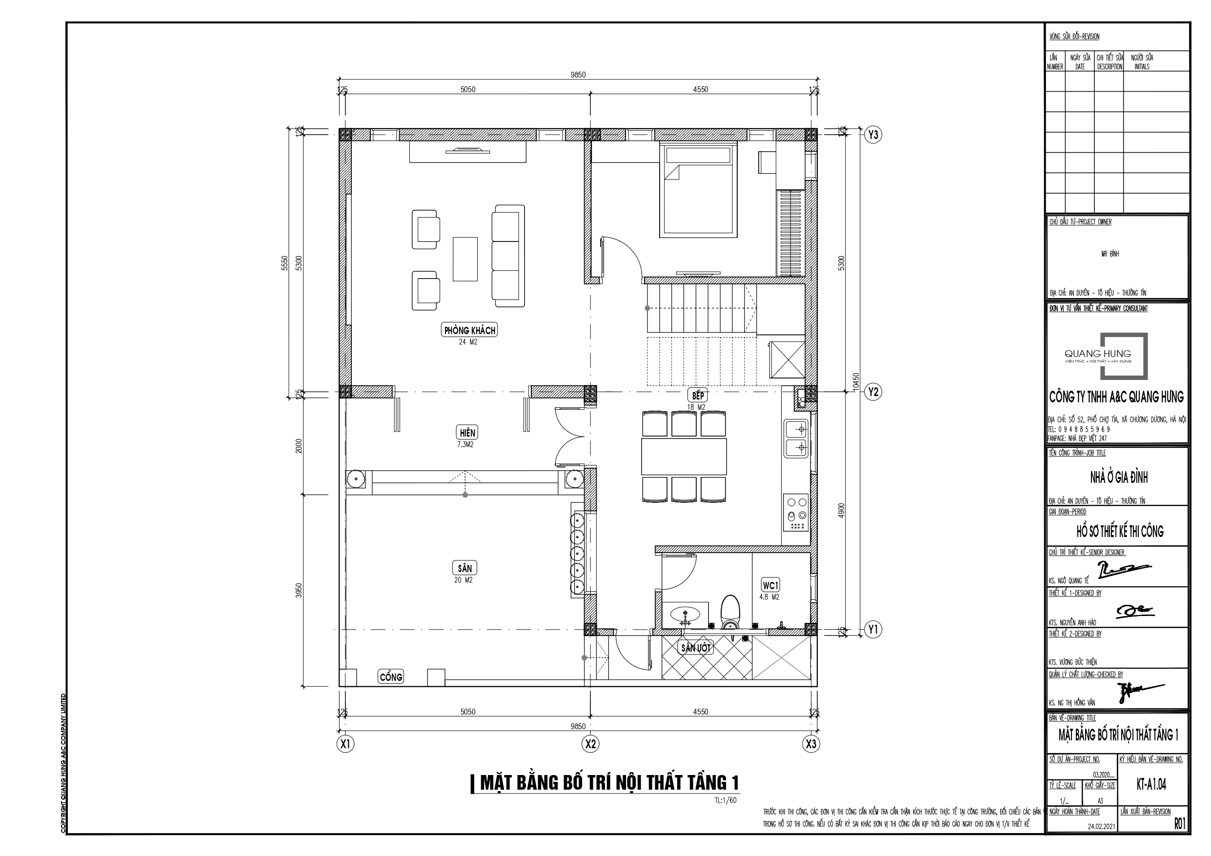
Thiết Kế Nội Thất Tầng 1:
Phòng khách: Với không gian mở, phòng khách được thiết kế để tận dụng tối đa ánh sáng tự nhiên. Sàn gạch bóng loáng kết hợp với các món đồ nội thất sang trọng tạo cảm giác rộng rãi và thoải mái.
Bếp và phòng ăn: Khu vực bếp được bố trí tiện lợi, với đầy đủ các thiết bị hiện đại. Bàn ăn 8 người mang đến không gian lý tưởng cho các bữa tiệc gia đình.
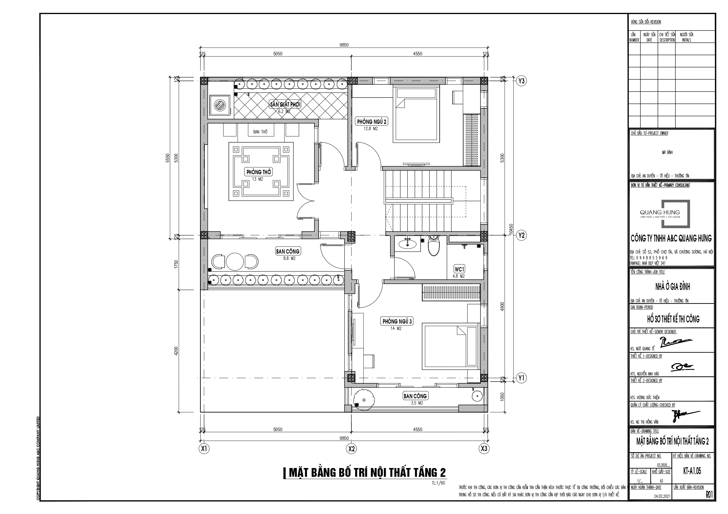
Mặt Bằng Tầng 2:
Phòng ngủ: Ba phòng ngủ được thiết kế rộng rãi, thoáng đãng, mỗi phòng đều có cửa sổ lớn, giúp tối đa hóa ánh sáng tự nhiên. Tất cả đều có hệ thống nội thất hiện đại, mang lại sự tiện nghi cho người sử dụng.
Ban công: Khu vực ban công của biệt thự rộng rãi, phù hợp cho những buổi sáng ngắm cảnh và thư giãn. Cây xanh được bố trí khéo léo, làm tăng thêm vẻ tươi mới cho ngôi nhà.
Giai đoạn xây dựng: Từ nền móng đến cấu trúc chính đều được thực hiện với sự cẩn thận và chi tiết. Các bước thi công từ việc lắp đặt khung thép cho đến hoàn thiện tường gạch đều tuân thủ các tiêu chuẩn kỹ thuật cao.
Hình ảnh thi công: Hình ảnh dưới đây thể hiện rõ quá trình xây dựng từ giai đoạn đổ móng, xây tường, đến việc lắp đặt các chi tiết nội thất.

Không gian sống rộng rãi: Với 3 phòng ngủ và không gian sinh hoạt chung, biệt thự này đáp ứng nhu cầu của một gia đình nhiều thế hệ.
Thiết kế hiện đại: Các chi tiết trong ngôi nhà được thiết kế theo phong cách hiện đại, tiết kiệm diện tích nhưng vẫn đảm bảo sự tiện nghi.
Kết cấu vững chắc: Quy trình thi công được thực hiện nghiêm ngặt, đảm bảo độ bền và an toàn cho công trình.
Nhà phố 2 tầng là sự lựa chọn lý tưởng cho những gia đình nhỏ, thích sự hiện đại, tối giản nhưng vẫn đầy đủ tiện nghi. Với thiết kế thông minh và tận dụng không gian tối đa, mẫu nhà này sẽ mang đến cho bạn một không gian sống lý tưởng. Liên hệ ngay với chúng tôi để được tư vấn thêm về mẫu nhà phố này hoặc những lựa chọn thiết kế khác!
Giải pháp thiết kế thực tế
Thiết kế dựa trên nhu cầu sinh hoạt của gia đình, không chỉ đẹp mà còn tiện nghi khi sử dụng lâu dài.
Hạn chế phát sinh chi phí
Tư vấn rõ phương án ngay từ đầu, giúp gia chủ kiểm soát ngân sách và tránh chi phí ngoài kế hoạch.
Thi công bám sát thiết kế
TĐảm bảo tính đồng bộ giữa bản vẽ và công trình thực tế, hạn chế sai lệch khi triển khai.
ĐĂNG KÝ BÁO GIÁ