MÔ TẢ SẢN PHẨM
Nhà phố 5 tầng. 7.5x20m, 6 phòng ngủ
Khi gia đình có nhiều thế hệ cùng sinh sống, việc thiết kế một ngôi nhà vừa đảm bảo tính kết nối, vừa giữ được sự riêng tư là bài toán không hề đơn giản. Mẫu nhà phố 5 tầng của chủ đầu tư Mr. Tần là một điển hình cho sự sang trọng, thời thượng và tối ưu công năng trên diện tích đất 150m2.
Chủ đầu tư: Mr. Tần
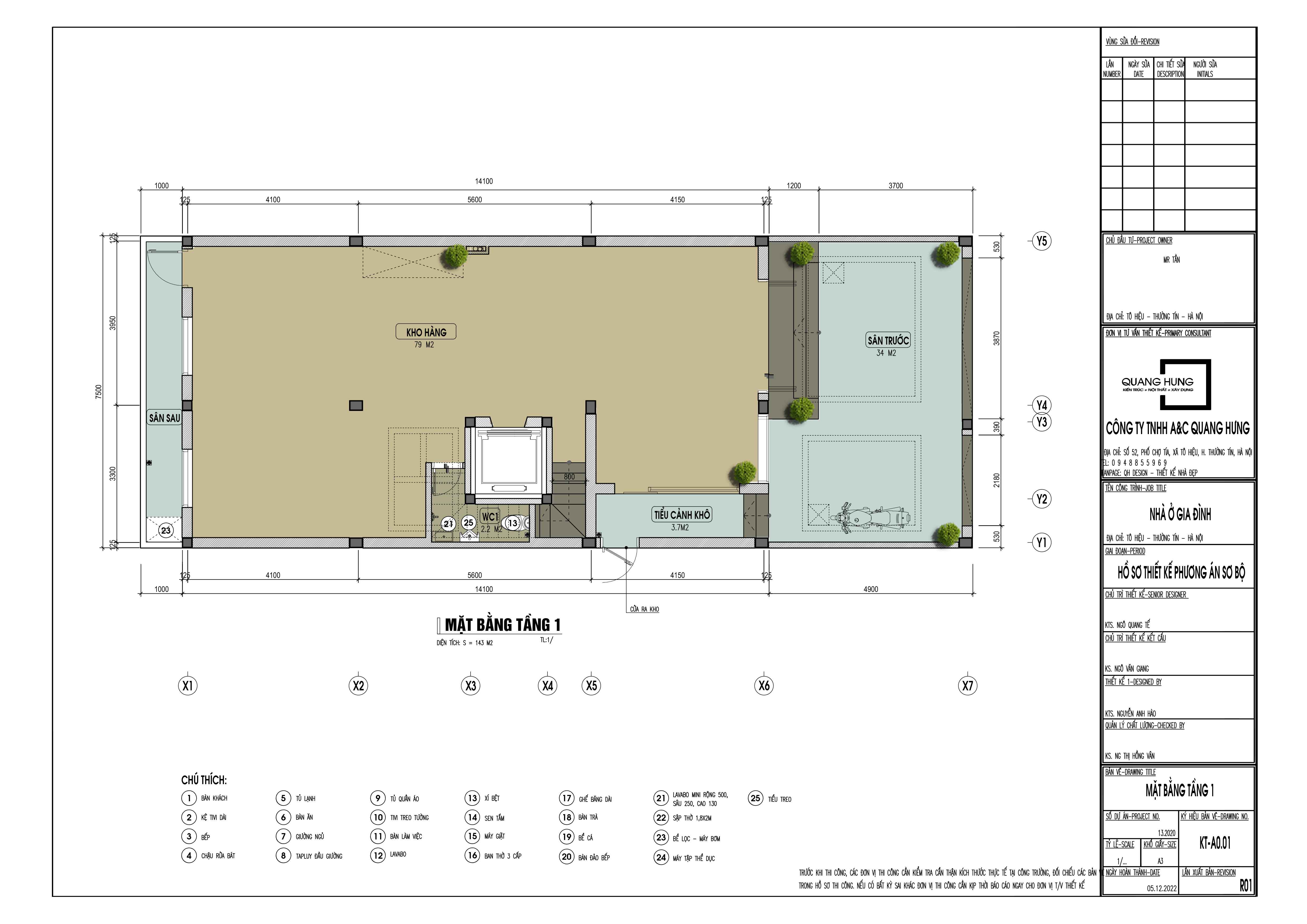
Diện tích xây dựng: 7.5m x 20m
Phong cách kiến trúc: Hiện đại sang trọng (Modern Luxury)
Quy mô: 5 Tầng
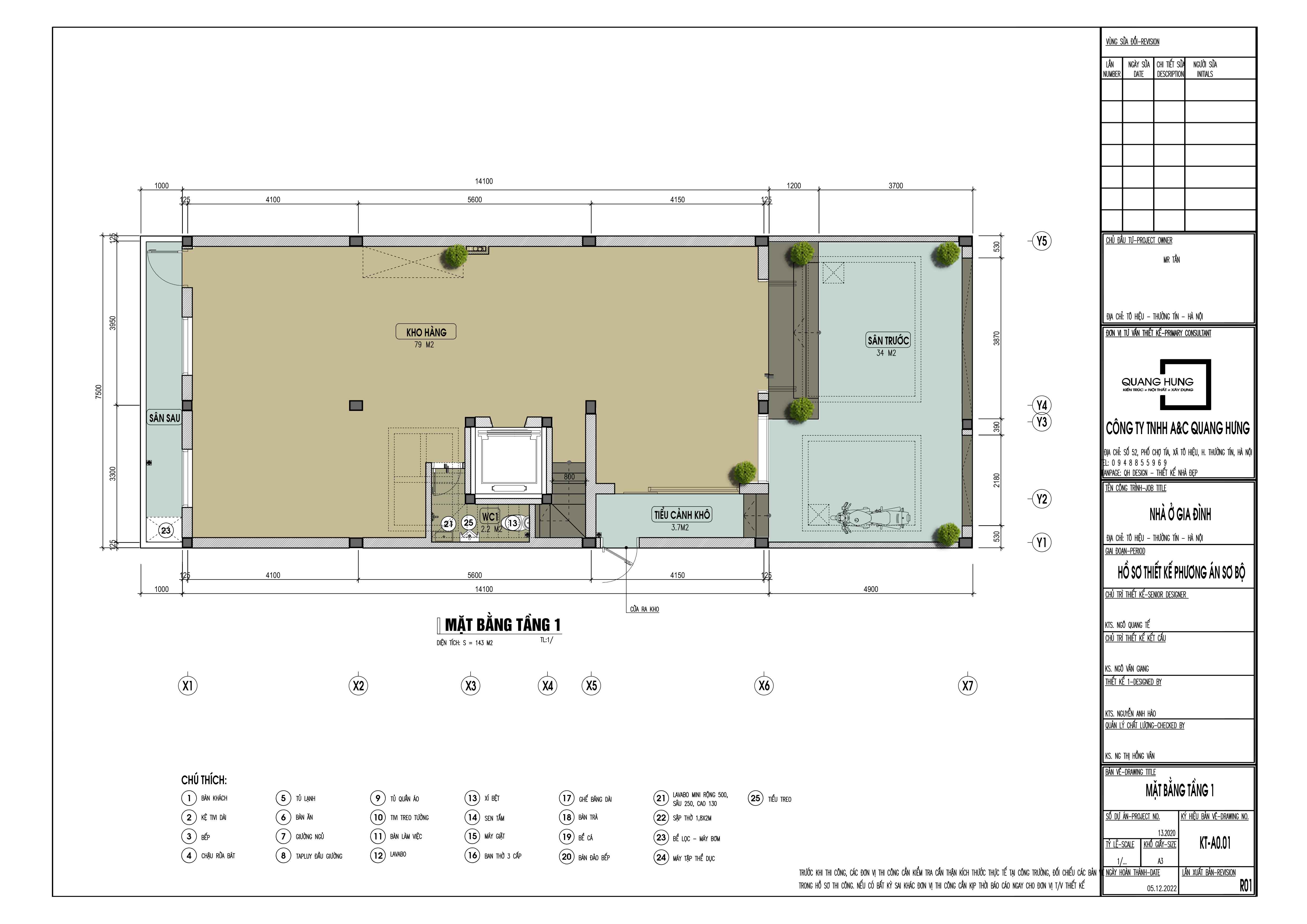
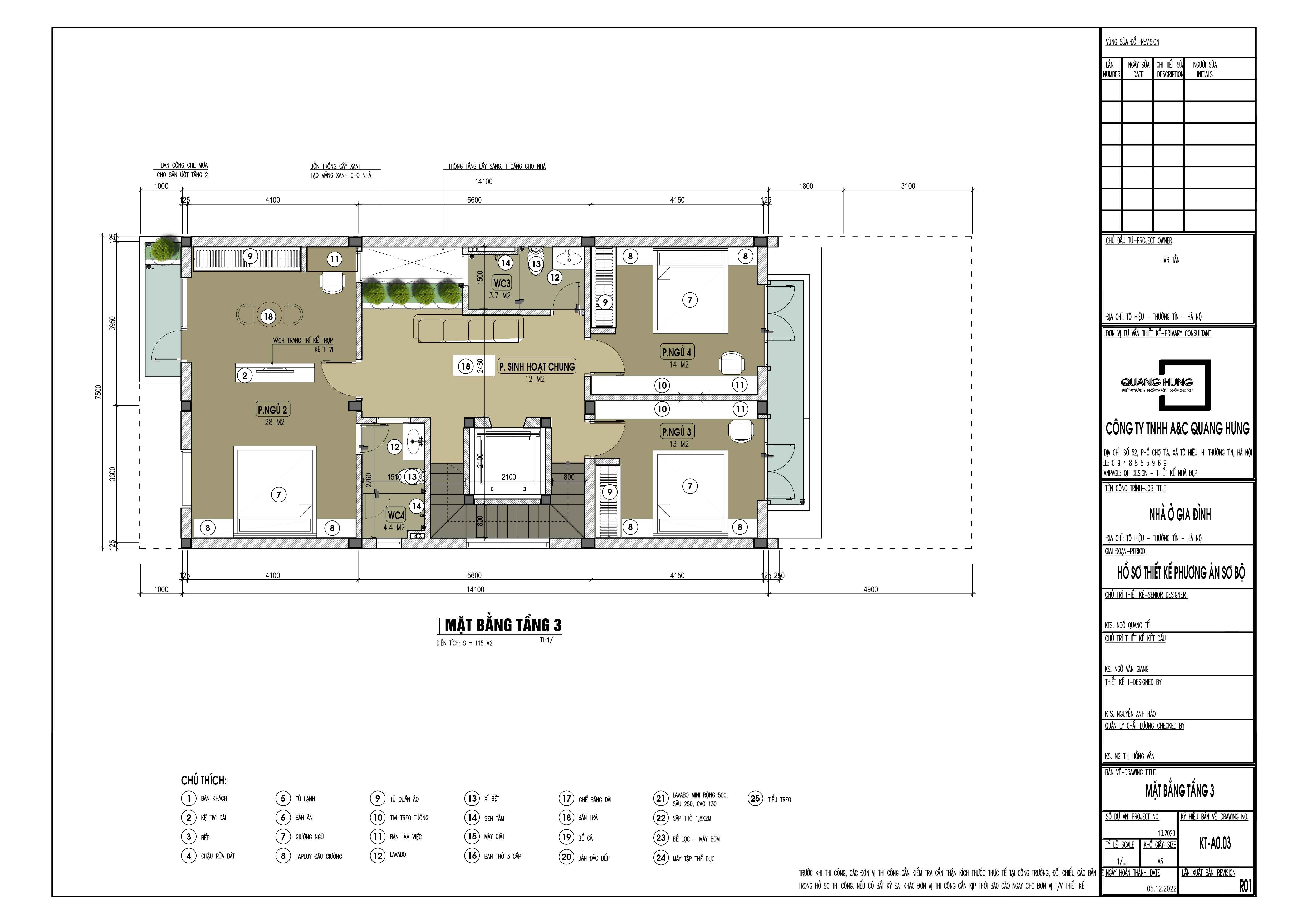
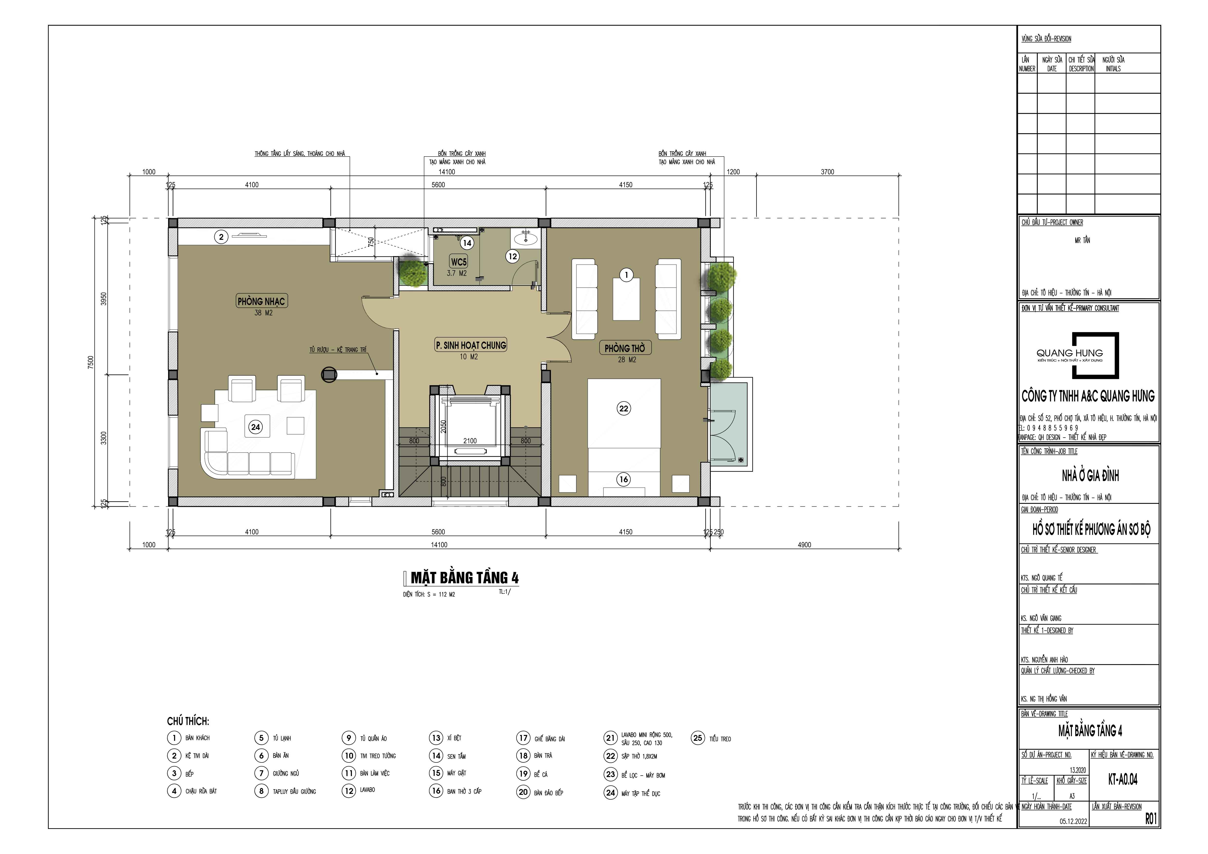
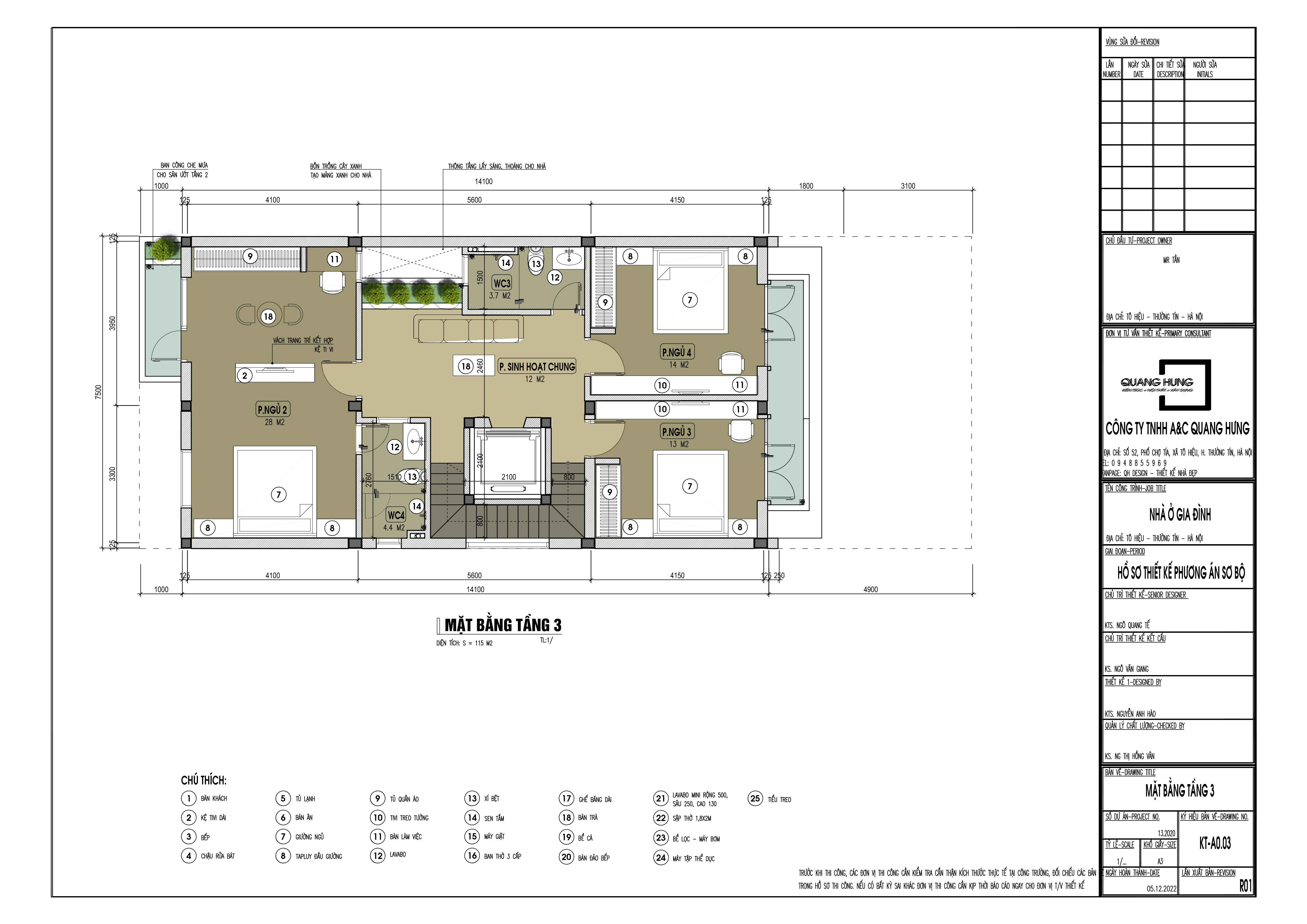
Công năng: 06 Phòng ngủ, Phòng khách, Bếp, Phòng thờ, Sân mái thư giãn, Kho & Gym.
Đơn vị thiết kế & Giám sát: Công ty TNHH A&C Quang Hưng
Với mặt tiền rộng tới 7.5m, kiến trúc sư đã sử dụng lối thiết kế giật cấp kết hợp cùng các mảng vật liệu gỗ và kính cường lực:
Tối ưu ánh sáng: Hệ thống cửa sổ và ban công kính lớn giúp đón ánh sáng tự nhiên cho toàn bộ chiều sâu 20m của ngôi nhà.
Mảng xanh tầng mái: Thiết kế sân thượng với hệ mái che cách điệu, tạo không gian xanh mát cho gia đình thư giãn.
Mặt tiền tầng 1: Được ốp đá cao cấp, tạo vẻ ngoài vững chãi và sang trọng ngay từ cái nhìn đầu tiên.
Điểm mấu chốt của công trình là cách phân bổ 6 phòng ngủ và các khu vực sinh hoạt chung:
Không gian chung: Phòng khách và Bếp được ưu tiên diện tích lớn để phục vụ những bữa cơm sum họp đông đủ thành viên.
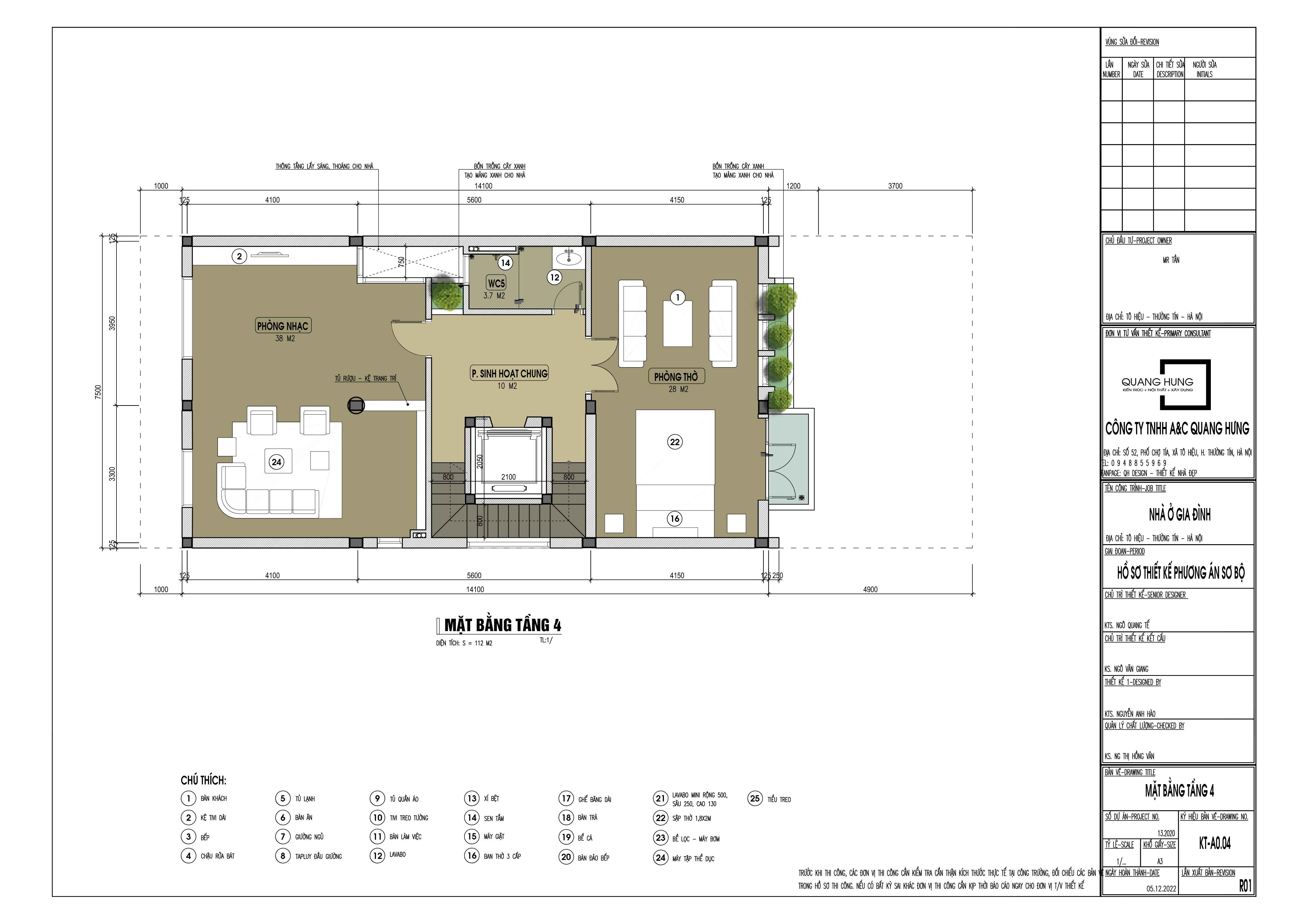
Tầng 5 (Tầng Tum): Là nơi đặt Phòng thờ trang trọng, khu vực Kho & Gym (19m2) và đặc biệt là Sân mái (40m2) - nơi tổ chức các bữa tiệc BBQ ngoài trời cho gia đình.
Thông tầng: Hệ thống giếng trời được bố trí giữa nhà giúp đối lưu không khí, đảm bảo mọi phòng ngủ đều thoáng đãng.




Để hiện thực hóa một công trình 5 tầng quy mô, đội ngũ kỹ sư của Quang Hưng đã giám sát chặt chẽ quá trình thi công phần thô:
Kết cấu thép: Sử dụng hệ thống thép sàn 2 lớp đan dầy, đảm bảo khả năng chịu lực tối ưu cho công trình cao tầng.
Kỹ thuật đổ bê tông: Đảm bảo độ bền vững và chống thấm tuyệt đối cho các khu vực sân thượng và ban công.



Sức chứa lớn: Đáp ứng trọn vẹn không gian sống cho 8-10 thành viên mà vẫn thoải mái.
Giá trị thẩm mỹ cao: Phong cách hiện đại, không lỗi mốt theo thời gian.
Kỹ thuật đảm bảo: Được tư vấn và giám sát bởi đơn vị có kinh nghiệm lâu năm trong lĩnh vực nhà phố cao tầng.
Giải pháp thiết kế thực tế
Thiết kế dựa trên nhu cầu sinh hoạt của gia đình, không chỉ đẹp mà còn tiện nghi khi sử dụng lâu dài.
Hạn chế phát sinh chi phí
Tư vấn rõ phương án ngay từ đầu, giúp gia chủ kiểm soát ngân sách và tránh chi phí ngoài kế hoạch.
Thi công bám sát thiết kế
TĐảm bảo tính đồng bộ giữa bản vẽ và công trình thực tế, hạn chế sai lệch khi triển khai.
ĐĂNG KÝ BÁO GIÁ