|
Liên hệ |
0986464199 |
| Đánh giá |
|
| Có sẵn: | Còn hàng |
MÔ TẢ SẢN PHẨM
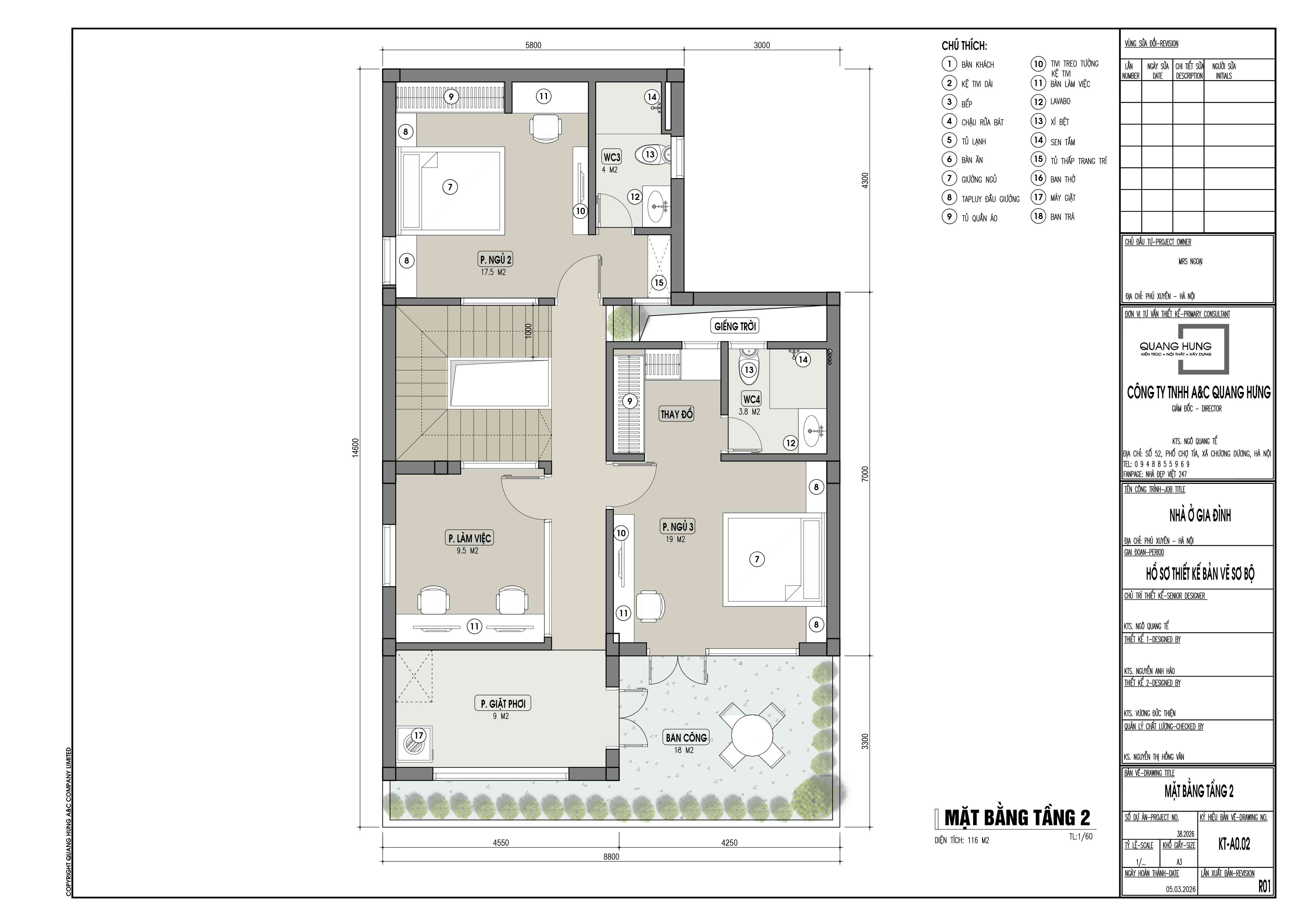
THIẾT KẾ NHÀ PHỐ 2 TẦNG CAO CẤP 9x14m, 3 PHÒNG NGỦ - CHI PHÍ KHOẢNG 1.5 TỶ


Không phô trương, không cầu kỳ. Công trình này là lời khẳng định cho một xu hướng sống mới tại Hà Nội:
👉 Sống tối giản – nhưng không đơn điệu
👉 Diện tích vừa phải – nhưng trải nghiệm phải trọn vẹn
Khối nhà vuông vức, đường nét gọn gàng, phối màu trắng – nâu ấm kết hợp kính và cây xanh… tất cả tạo nên một tổng thể nhẹ nhàng, thanh lịch nhưng đầy chiều sâu.
👉 Đây là kiểu mặt tiền rất “được lòng” khách hàng Hà Nội:


Không phải ở diện tích.
Không phải ở số tầng.
👉 Mà nằm ở cách kiến trúc phục vụ cuộc sống:
➡️ Một ngôi nhà “vừa đủ” nhưng đúng nhu cầu – đúng thời đại
Giữa hàng trăm mẫu nhà cầu kỳ ngoài kia, đôi khi thứ khách hàng cần lại là:
👉 Một ngôi nhà dễ sống
👉 Một không gian không gây mệt mỏi
👉 Một thiết kế không lỗi thời sau 10 năm
Và công trình này chính là câu trả lời.
Giải pháp thiết kế thực tế
Thiết kế dựa trên nhu cầu sinh hoạt của gia đình, không chỉ đẹp mà còn tiện nghi khi sử dụng lâu dài.
Hạn chế phát sinh chi phí
Tư vấn rõ phương án ngay từ đầu, giúp gia chủ kiểm soát ngân sách và tránh chi phí ngoài kế hoạch.
Thi công bám sát thiết kế
TĐảm bảo tính đồng bộ giữa bản vẽ và công trình thực tế, hạn chế sai lệch khi triển khai.
ĐĂNG KÝ BÁO GIÁ