Biệt thự 1 tầng mái nhật 3 phòng ngủ

Biệt thự 1 tầng mái nhật 3 phòng ngủ

Liên hệ

0986464199
Đánh giá rate
Có sẵn: Còn hàng

MÔ TẢ SẢN PHẨM

Biệt thự 1 tầng mái nhật 3 phòng ngủ

BIỆT THỰ VƯỜN 1 TẦNG HIỆN ĐẠI – KHÔNG GIAN SỐNG THOÁNG ĐÃNG, GẦN GŨI THIÊN NHIÊN

Một không gian sống lý tưởng dành cho những gia đình yêu thích sự yên tĩnh, thoáng đãng và tiện nghi. biệt thự vườn 1 tầng mái Nhật hiện đại được thiết kế tối ưu công năng, kết hợp hài hòa giữa kiến trúc sang trọng và cảnh quan sân vườn xanh mát xung quanh.

Ngôi nhà gây ấn tượng với hệ mái Nhật thanh thoát, mặt tiền cân đối, sử dụng hệ cửa kính lớn giúp đón ánh sáng tự nhiên, tạo cảm giác rộng rãi và thoáng đãng cho toàn bộ không gian.


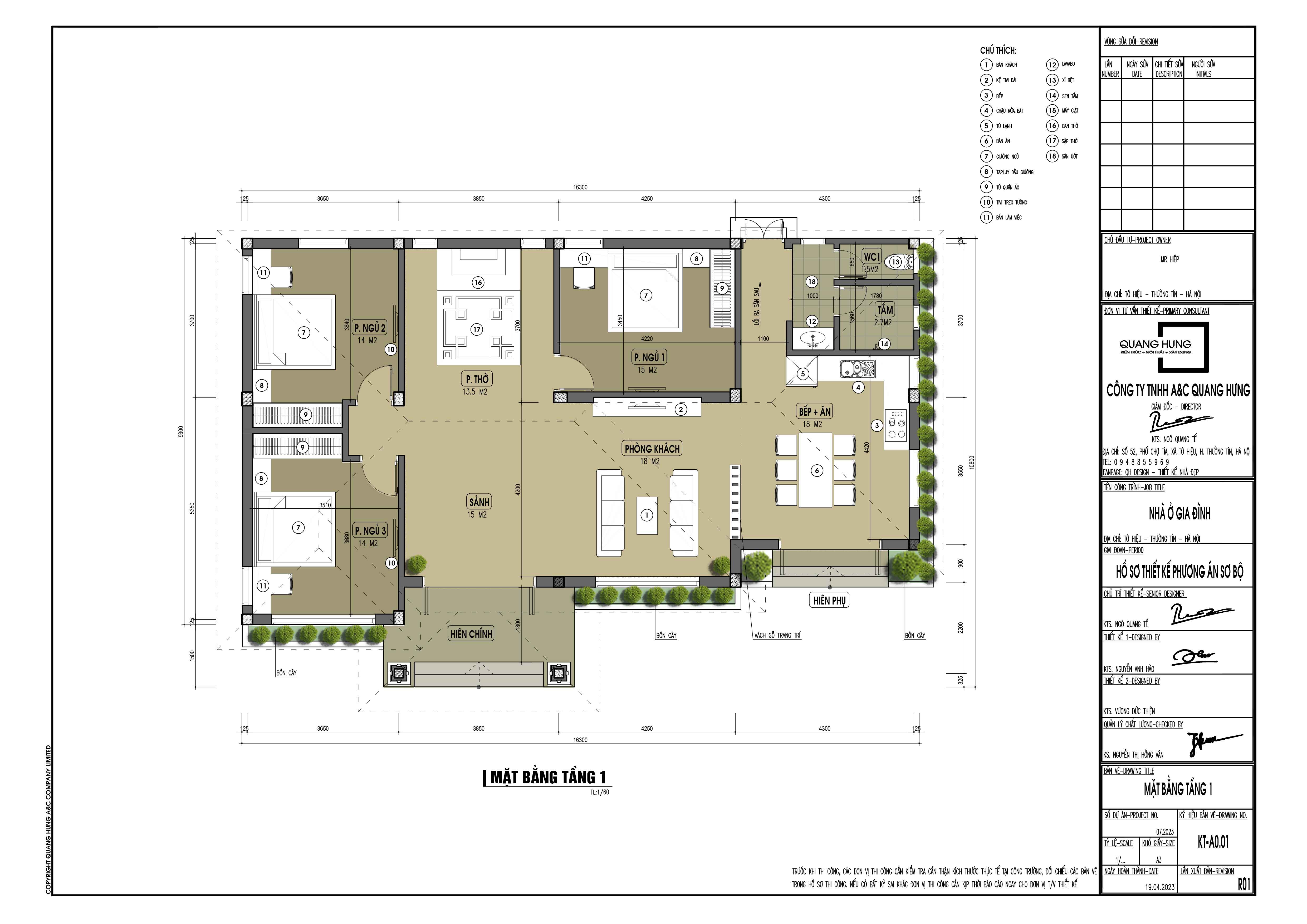
THÔNG TIN CÔNG TRÌNH

  • Loại hình: Biệt thự vườn 1 tầng hiện đại

  • Phong cách: Mái Nhật sang trọng

  • Công năng sử dụng:

    • 1 Phòng khách rộng rãi

    • 1 Phòng thờ trang nghiêm

    • 3 Phòng ngủ tiện nghi

    • 1 Bếp + phòng ăn

    • 1 WC chung

    • 1 khu giặt + sân phụ


ƯU ĐIỂM NỔI BẬT

✔ Thiết kế nhà vườn thoáng đãng
Công trình có sân vườn rộng bao quanh, tạo không gian thư giãn, trồng cây xanh và sinh hoạt ngoài trời.

✔ Mặt tiền sang trọng – hiện đại
Hệ cột và mái đua tạo điểm nhấn kiến trúc, kết hợp màu sắc trang nhã mang đến vẻ đẹp tinh tế.

✔ Không gian sống gần gũi thiên nhiên
Hệ cửa kính lớn giúp ánh sáng và gió tự nhiên lưu thông tốt.

✔ Công năng khoa học – tối ưu diện tích
Các khu vực sinh hoạt chung được bố trí trung tâm, thuận tiện di chuyển.

✔ Phù hợp xây dựng tại nông thôn hoặc khu đất rộng
Lý tưởng cho gia đình nhiều thế hệ hoặc người yêu thích cuộc sống nghỉ dưỡng.


KHÔNG GIAN SÂN VƯỜN

Khoảng sân rộng phía trước có thể sử dụng làm:

  • Khu đỗ xe ô tô

  • Không gian sinh hoạt ngoài trời

  • Tiểu cảnh cây xanh

  • Khu vui chơi cho trẻ em

Mang lại cảm giác thoáng mát và thư giãn như một khu nghỉ dưỡng tại gia.


ĐƠN VỊ THIẾT KẾ

CÔNG TY TNHH A&C QUANG HƯNG
Thiết kế kiến trúc – Nội thất – Xây dựng

📞 Hotline: 0948 855 969/ 0986 464 199


✅ Bạn đang có đất và muốn xây nhà đẹp?
Hãy liên hệ ngay để được tư vấn thiết kế miễn phí và lên phương án phù hợp nhất với diện tích đất của gia đình.

tuong_vinh

Giải pháp thiết kế thực tế

Thiết kế dựa trên nhu cầu sinh hoạt của gia đình, không chỉ đẹp mà còn tiện nghi khi sử dụng lâu dài.

tuong_vinh

Hạn chế phát sinh chi phí

Tư vấn rõ phương án ngay từ đầu, giúp gia chủ kiểm soát ngân sách và tránh chi phí ngoài kế hoạch.

tuong_vinh

Thi công bám sát thiết kế

TĐảm bảo tính đồng bộ giữa bản vẽ và công trình thực tế, hạn chế sai lệch khi triển khai.

ĐĂNG KÝ BÁO GIÁ

Loading

CÔNG TY TNHH A&C QUANG HƯNG

Trụ sở chính: Số 52 phố Chợ Tía, xã Chương Dương, TP Hà Nội

Văn phòng đại diện:

0986464199 0948855969 ac.quanghung@gmail.com

KẾT NỐI VỚI CHÚNG TÔI

© 2021 nhadepviet247.vn. All Rights Reserved. Design web and SEO by FAGO AGENCY