|
Liên hệ |
0986464199 |
| Đánh giá |
|
| Có sẵn: | Còn hàng |
MÔ TẢ SẢN PHẨM
Biệt thự 2 tầng phong cách Đông Dương. 10x15m, 4 phòng ngủ kết hợp sân vườn Nhật
Phong cách kiến trúc Tân cổ điển chưa bao giờ lỗi mốt, đặc biệt là khi kết hợp với hệ mái Nhật thanh lịch. Mẫu biệt thự 2 tầng dưới đây không chỉ là một công trình xây dựng, mà là một tác phẩm nghệ thuật, khẳng định vị thế của gia chủ qua từng đường nét vòm cong và hệ cột vững chãi.
Diện tích xây dựng: 10.45m x 13.55m
Phong cách kiến trúc: Tân cổ điển (Neoclassical)
Quy mô công năng: 02 Tầng
Số phòng ngủ: 04 Phòng ngủ tiện nghi
Khu vực chức năng: Phòng khách, Bếp & Phòng ăn, Phòng thờ, 03 WC, Kho
Hệ mái: Mái Nhật màu xanh ghi hiện đại
Ngôi biệt thự gây ấn tượng mạnh bởi sự kết hợp hài hòa giữa tone màu trắng chủ đạo và hệ cửa gỗ nâu ấm áp.
Hệ cửa vòm đặc trưng: Các ô cửa sổ và cửa chính được thiết kế dạng vòm bán nguyệt, tạo vẻ mềm mại, quý tộc cho mặt tiền.
Vật liệu cao cấp: Tầng 1 được ốp đá Marble vân mây sang trọng, giúp bảo vệ công trình khỏi rêu mốc và tăng độ bền bỉ theo thời gian.
Mái Nhật xanh than: Độ dốc vừa phải giúp thoát nước nhanh, phù hợp với khí hậu nóng ẩm mưa nhiều tại Việt Nam, đồng thời tạo cảm giác ngôi nhà cao ráo, thanh thoát hơn.
Với diện tích sàn khoảng 10.5m x 13.5m, tầng 1 được kiến trúc sư phân bổ cực kỳ khoa học để tạo ra sự thông thoáng tối đa:
Phòng khách (Living Room): Nằm ngay sau sảnh chính, là không gian rộng mở để đón tiếp khách khứa.
Bếp & Phòng ăn (Kitchen & Dining): Thiết kế mở liên kết với phòng khách, tạo không gian sinh hoạt chung ấm cúng.
Tiện ích phụ: Một phòng ngủ nhỏ (Bedroom 01) dành cho người lớn tuổi và khu vực Kho (Storage) được bố trí kín đáo phía sau.
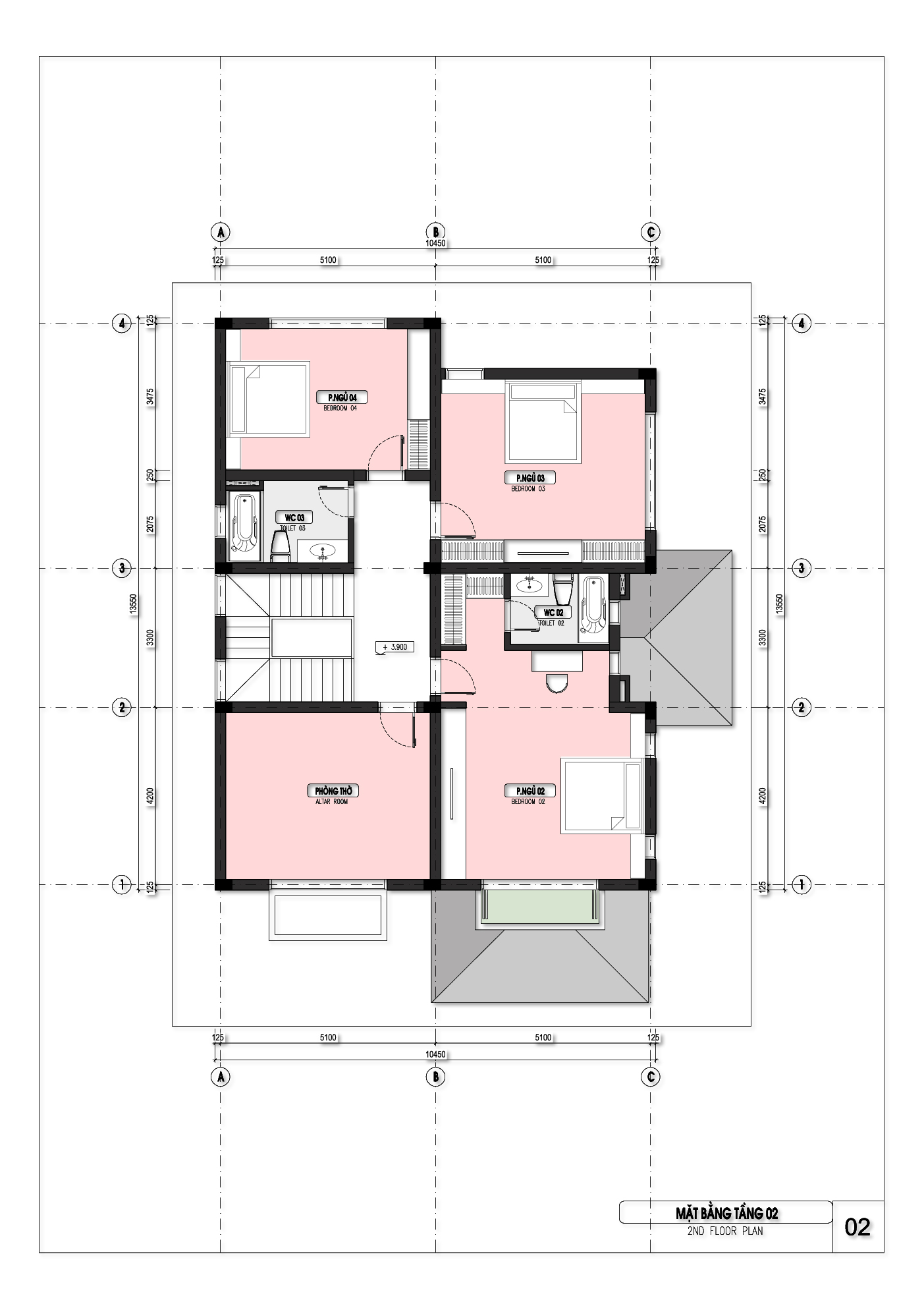
Tầng 2 tập trung hoàn toàn vào việc nghỉ ngơi và thờ tự, đảm bảo sự yên tĩnh và riêng tư:
Phòng thờ (Altar Room): Được đặt ở vị trí trang trọng phía trước, hướng ra ban công chính đón vượng khí.
Hệ thống 3 phòng ngủ: Gồm 1 phòng Master và 2 phòng ngủ phụ. Điểm đặc biệt là các phòng đều có cửa sổ lớn hướng ra ngoài để lấy sáng và gió tự nhiên.
Khu sinh hoạt chung: Khoảng đệm cầu thang rộng rãi, giúp kết nối các thành viên trong gia đình trước khi về phòng riêng.
Hãy đến với chúng tôi để trải nghiệm trực tiếp mẫu biệt thự này và nhận được sự tư vấn thiết kế phù hợp với nhu cầu của bạn. Để có thêm thông tin chi tiết và báo giá, đừng ngần ngại liên hệ ngay hôm nay.
Giải pháp thiết kế thực tế
Thiết kế dựa trên nhu cầu sinh hoạt của gia đình, không chỉ đẹp mà còn tiện nghi khi sử dụng lâu dài.
Hạn chế phát sinh chi phí
Tư vấn rõ phương án ngay từ đầu, giúp gia chủ kiểm soát ngân sách và tránh chi phí ngoài kế hoạch.
Thi công bám sát thiết kế
TĐảm bảo tính đồng bộ giữa bản vẽ và công trình thực tế, hạn chế sai lệch khi triển khai.
ĐĂNG KÝ BÁO GIÁ