MÔ TẢ SẢN PHẨM
Biệt thự 2 tầng hiện đại 8x12m, 4 phòng ngủ
Mẫu biệt thự 2 tầng hiện đại 8x12m của anh Kha được thiết kế theo phong cách tối giản, tập trung vào công năng và không gian sống xanh. Ngôi nhà phù hợp với gia đình 3 thế hệ khi bố trí hợp lý 4 phòng ngủ, phòng sinh hoạt chung, sân vườn tiểu cảnh và các khu vực chức năng tiện nghi.
Thiết kế hướng tới sự thoáng đãng, nhiều ánh sáng tự nhiên, tận dụng tối đa diện tích đất để tạo nên một không gian sống hiện đại nhưng vẫn gần gũi thiên nhiên.
Thông tin công trình
Chủ đầu tư: Anh Kha
Loại hình: Biệt thự hiện đại
Quy mô: 2 tầng
Diện tích xây dựng: 8x12m
Công năng: 4 phòng ngủ, phòng khách, bếp + ăn, phòng sinh hoạt chung
Không gian phụ trợ: ban công, sân vườn, sân mái, khu giặt phơi



Ngôi nhà sử dụng phong cách kiến trúc hiện đại với các hình khối vuông vức, kết hợp các vật liệu như kính, lam sắt và gạch ốp trang trí tạo điểm nhấn.
Điểm nổi bật của thiết kế:
Gam màu trắng – nâu – xám mang lại vẻ sang trọng và tinh tế
Hệ cửa kính lớn giúp đón ánh sáng tự nhiên tối đa
Ban công rộng và sân mái tạo không gian thư giãn
Sân vườn tiểu cảnh giúp không gian sống xanh và thoáng
Không gian xung quanh được bố trí nhiều cây xanh, lối đi lát đá và khu tiểu cảnh, mang lại cảm giác gần gũi thiên nhiên và thư giãn cho gia đình.



Trong giai đoạn đầu, công trình được thi công móng và tường nền bằng gạch kết hợp bê tông cốt thép. Đây là bước quan trọng quyết định độ bền và sự ổn định của toàn bộ công trình.
Các hạng mục thi công gồm:
Định vị móng theo bản vẽ thiết kế
Đổ bê tông móng và chân cột
Xây tường móng bằng gạch
Chuẩn bị hệ thống cột chịu lực
Quá trình thi công được thực hiện cẩn thận nhằm đảm bảo kết cấu vững chắc, chống lún và tăng tuổi thọ công trình.

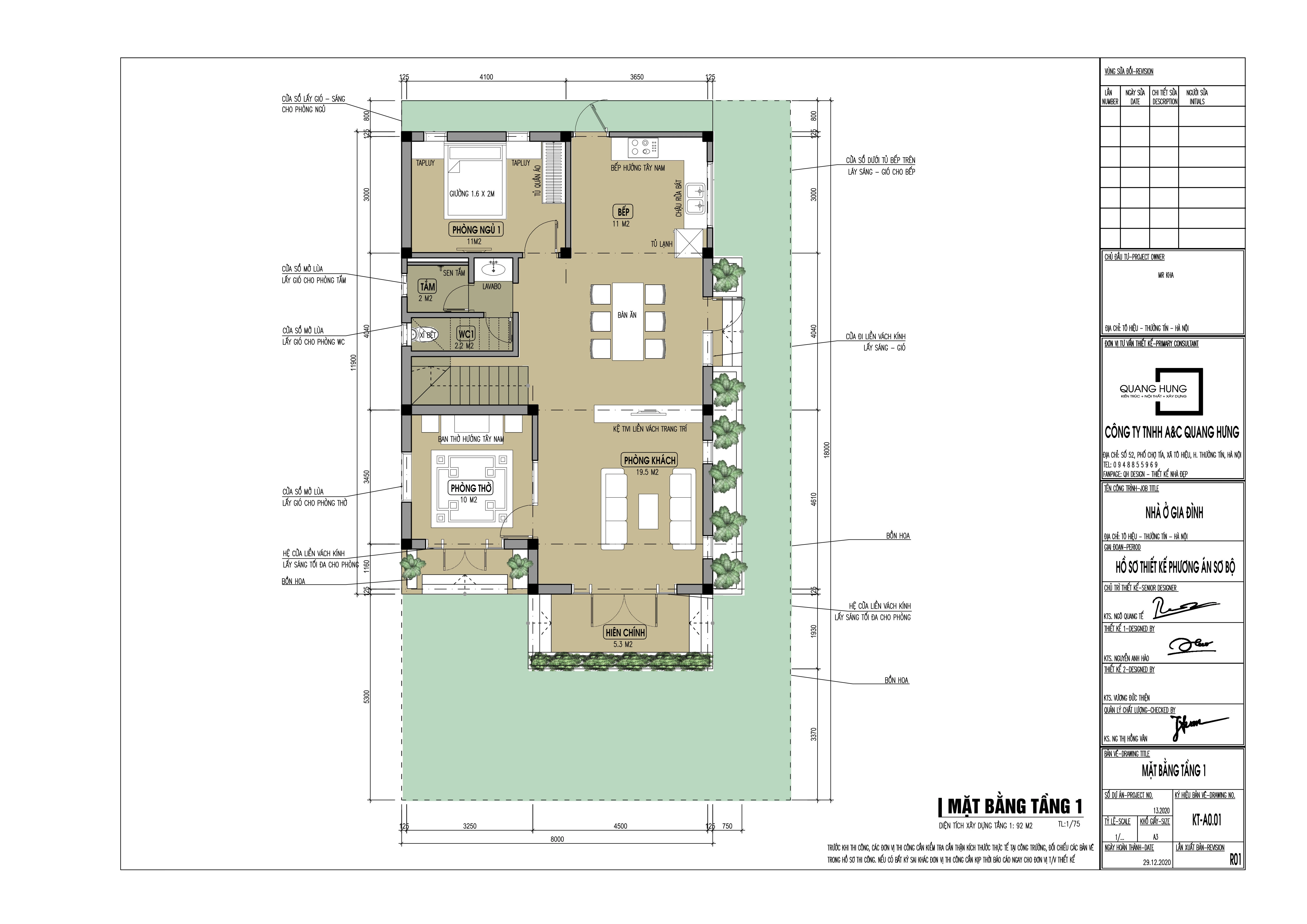
Tầng 1 được thiết kế để phục vụ các hoạt động sinh hoạt chung của gia đình.
Bố trí không gian:
Hiên chính
Phòng khách rộng rãi
Phòng bếp kết hợp phòng ăn
1 phòng ngủ
Phòng thờ
1 WC chung
Khu cầu thang
Phòng ngủ tại tầng 1 giúp người lớn tuổi sinh hoạt thuận tiện, không cần di chuyển lên xuống cầu thang nhiều lần.
Không gian phòng khách và bếp được thiết kế liên thông, tạo cảm giác rộng rãi và kết nối giữa các thành viên trong gia đình.
Tầng 2 là không gian nghỉ ngơi riêng tư của các thành viên trong gia đình.
Bố trí công năng:
3 phòng ngủ
Phòng sinh hoạt chung
2 phòng vệ sinh
Ban công
Sân mái
Phòng sinh hoạt chung là nơi các thành viên có thể xem phim, đọc sách hoặc trò chuyện, giúp tăng sự gắn kết trong gia đình.
Sân mái và ban công được tận dụng để trồng cây, tạo không gian thư giãn và đón gió tự nhiên.
Thiết kế biệt thự này mang lại nhiều lợi ích cho gia đình hiện đại:
Tối ưu diện tích đất: Diện tích 8x12m được bố trí khoa học giúp đảm bảo đầy đủ các không gian cần thiết.
Không gian sống xanh: Sân vườn và cây xanh tạo môi trường sống trong lành và thoáng mát.
Phù hợp gia đình nhiều thế hệ: Thiết kế 4 phòng ngủ giúp đáp ứng nhu cầu sinh hoạt của gia đình 3 thế hệ.
Kiến trúc hiện đại: Phong cách thiết kế tối giản nhưng tinh tế giúp công trình không lỗi thời theo thời gian.
Mẫu biệt thự 2 tầng hiện đại 8x12m của anh Kha là giải pháp lý tưởng cho những gia đình muốn sở hữu một ngôi nhà vừa đẹp, vừa tiện nghi và phù hợp với nhiều thế hệ cùng sinh sống.
Thiết kế không chỉ chú trọng thẩm mỹ mà còn tối ưu công năng, tạo nên không gian sống thoải mái, hiện đại và gần gũi thiên nhiên.
Giải pháp thiết kế thực tế
Thiết kế dựa trên nhu cầu sinh hoạt của gia đình, không chỉ đẹp mà còn tiện nghi khi sử dụng lâu dài.
Hạn chế phát sinh chi phí
Tư vấn rõ phương án ngay từ đầu, giúp gia chủ kiểm soát ngân sách và tránh chi phí ngoài kế hoạch.
Thi công bám sát thiết kế
TĐảm bảo tính đồng bộ giữa bản vẽ và công trình thực tế, hạn chế sai lệch khi triển khai.
ĐĂNG KÝ BÁO GIÁ