|
Liên hệ |
0986464199 |
| Đánh giá |
|
| Có sẵn: | Còn hàng |
MÔ TẢ SẢN PHẨM
Nhà phố 4 tầng + 1 lửng. 4.8x17m. 4 phòng ngủ kết hợp phòng học, phong cách hiện đại, thời thượng
Làm thế nào để sở hữu một ngôi nhà vừa là nơi an cư sang trọng, vừa có không gian dạy học chuyên nghiệp? Mẫu nhà phố hiện đại của gia đình Mr. Lợi tại Thường Tín chính là lời giải. Với lối kiến trúc "vị nhân sinh", tối ưu hóa từng mét vuông diện tích, công trình này đang trở thành chuẩn mực cho xu hướng nhà phố đa năng năm 2026.
Chủ đầu tư: Mr. Lợi
Diện tích xây dựng: 4.8m x 17.8m
Phong cách kiến trúc: Hiện đại thời thượng (Modern Luxury)
Quy mô: 4 Tầng + 1 Tầng lửng
Công năng: 4 Phòng ngủ, Gara, Lớp học, Phòng khách, Bếp, Phòng thờ, Sân cảnh
Đơn vị thiết kế: Công ty TNHH A&C Quang Hưng
Mặt tiền ngôi nhà gây ấn tượng mạnh bởi sự kết hợp giữa các mảng khối đặc rỗng đan xen:
Hệ gạch bông gió: Được sử dụng ở mặt tiền tầng 2 và tầng 3, giúp ngôi nhà luôn "biết thở", đón gió tự nhiên nhưng vẫn đảm bảo sự riêng tư và chắn nắng hướng Tây hiệu quả.
Mảng xanh thẳng đứng: Các bồn hoa gỗ kết hợp cùng ban công kính tạo nên một diện mạo trẻ trung, đầy sức sống giữa lòng đô thị.
Thiết kế tầng lửng thông tầng: Giúp mặt tiền trông cao ráo và bề thế hơn hẳn các mẫu nhà phố thông thường.
Sự logic trong cách phân chia mặt bằng chính là điểm đắt giá nhất của công trình này:
Tầng 1 & Tầng lửng: Không gian kinh doanh và tiếp khách
Tầng 1: Dành riêng diện tích lớn cho Gara xe (30m2) và một Lớp học (30m2) hiện đại phía sau, có sân sau thông thoáng.
Tầng lửng: Là không gian Phòng khách (21m2) sang trọng. Thiết kế thông tầng giúp gia chủ từ phòng khách có thể bao quát được không gian bên dưới, tạo cảm giác quyền quý và rộng rãi.

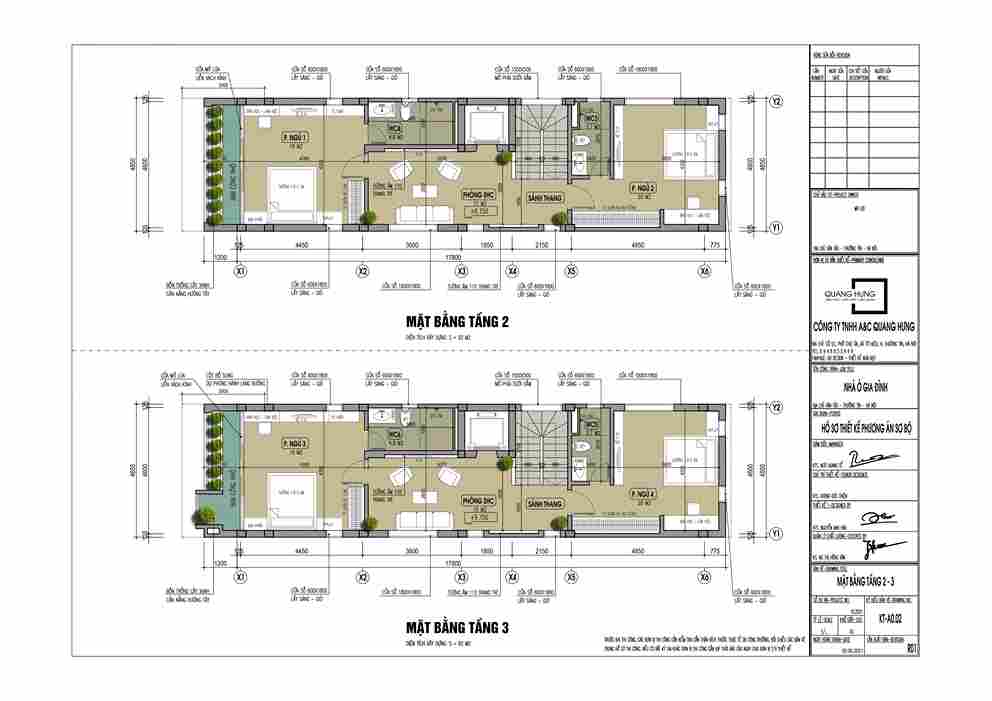
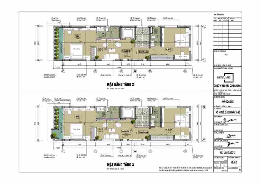
Tầng 2 & Tầng 3: Không gian nghỉ ngơi riêng tư
Mỗi tầng được bố trí 02 phòng ngủ rộng từ 19m2 - 20m2, tất cả đều có vệ sinh khép kín.
Điểm đặc biệt là các phòng đều sở hữu hệ cửa sổ lớn lấy sáng tự nhiên, giúp giảm thiểu điện năng tiêu thụ.

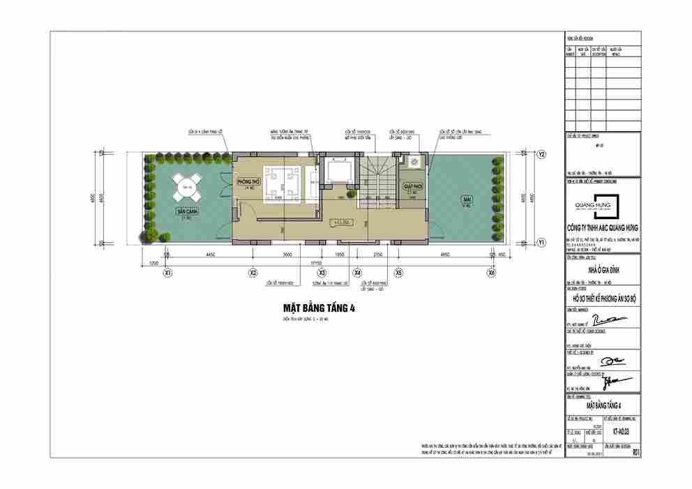
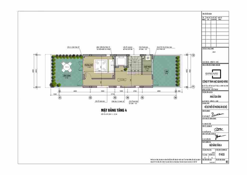
Tầng 4: Nơi thư giãn và tâm linh
Phòng thờ (14m2): Đặt ở vị trí tĩnh lặng, hướng ra Sân cảnh (21m2) rộng lớn. Đây là nơi gia chủ có thể trồng cây, thưởng trà và thư giãn sau giờ làm việc.

Tính đa năng: Tách biệt hoàn toàn không gian học tập/kinh doanh với không gian sinh hoạt, đảm bảo sự riêng tư tuyệt đối.
Thẩm mỹ thời thượng: Lối kiến trúc hình khối và gạch thông gió giúp ngôi nhà nổi bật nhất khu phố.
Phong thủy hài hòa: Các khu vực thông tầng và giếng trời được tính toán kỹ lưỡng để dòng khí luôn lưu chuyển hanh thông.
Giải pháp thiết kế thực tế
Thiết kế dựa trên nhu cầu sinh hoạt của gia đình, không chỉ đẹp mà còn tiện nghi khi sử dụng lâu dài.
Hạn chế phát sinh chi phí
Tư vấn rõ phương án ngay từ đầu, giúp gia chủ kiểm soát ngân sách và tránh chi phí ngoài kế hoạch.
Thi công bám sát thiết kế
TĐảm bảo tính đồng bộ giữa bản vẽ và công trình thực tế, hạn chế sai lệch khi triển khai.
ĐĂNG KÝ BÁO GIÁ