|
Liên hệ |
0986464199 |
| Đánh giá |
|
| Có sẵn: | Còn hàng |
MÔ TẢ SẢN PHẨM
Nhà phố 5 tầng + 1 lửng. 3.7x24m, 4 phòng ngủ kết hợp không gian kinh doanh, phong cách hiện đại
Sở hữu mảnh đất với mặt tiền hẹp (3.7m) nhưng chiều sâu lý tưởng, ngôi nhà phố của gia đình Mr. Duy tại Thường Tín đã được các KTS Quang Hưng biến hóa thành một không gian đa năng hiện đại. Sự kết hợp giữa thang máy gia đình và lối kiến trúc thông tầng thông minh đã xóa tan cảm giác bí bách của nhà ống, tạo nên một công trình thời thượng và đầy đủ tiện nghi.
Chủ đầu tư: Mr. Duy
Diện tích xây dựng: 3.7m x 17.4m (Diện tích sàn ~65m2)
Phong cách kiến trúc: Hiện đại (Modernism)
Quy mô: 5 Tầng + 1 Tầng lửng + Thang máy
Công năng: Không gian kinh doanh, 04 Phòng ngủ, Phòng khách, Bếp, Phòng thờ, Sân vườn.
Đơn vị thiết kế: Công ty TNHH A&C Quang Hưng

Để xử lý mặt tiền chỉ 3.7m, các KTS đã sử dụng thủ pháp kiến trúc hình khối giật cấp, giúp ngôi nhà trông rộng hơn thực tế:
Hệ khối vuông tối giản: Các mảng tường trắng kết hợp cùng vật liệu gỗ và ban công kính tạo nên diện mạo sang trọng, trẻ trung.
Tối ưu view nhìn: Hệ cửa kính kịch trần giúp mặt tiền đón trọn ánh sáng tự nhiên, đồng thời tạo ra tầm nhìn thoáng đãng từ bên trong.
Điểm nhấn xanh: Các bồn cây được bố trí khéo léo tại mỗi tầng, giúp thanh lọc không khí và giảm bức xạ nhiệt cho ngôi nhà hướng phố.
Sự xuất hiện của thang máy nằm giữa lõi cầu thang bộ là chìa khóa giúp việc di chuyển giữa 5 tầng trở nên dễ dàng:
Tầng 1: Không gian kinh doanh chuyên nghiệp
Toàn bộ diện tích phía trước được dành cho Không gian kinh doanh (hơn 30m2).
Phía sau là khu vực Bếp & Phòng ăn (18.5m2) cùng sân ướt, đảm bảo sự tách biệt giữa việc làm ăn và sinh hoạt.
Tầng lửng (Tầng 2): Phòng khách "View" Sân cảnh
Đây là điểm đắt giá nhất với Phòng khách (21m2) rộng rãi, view nhìn thẳng ra khoảng Sân cảnh cực chill phía trước. Thiết kế này giúp phòng khách luôn tràn ngập ánh sáng.

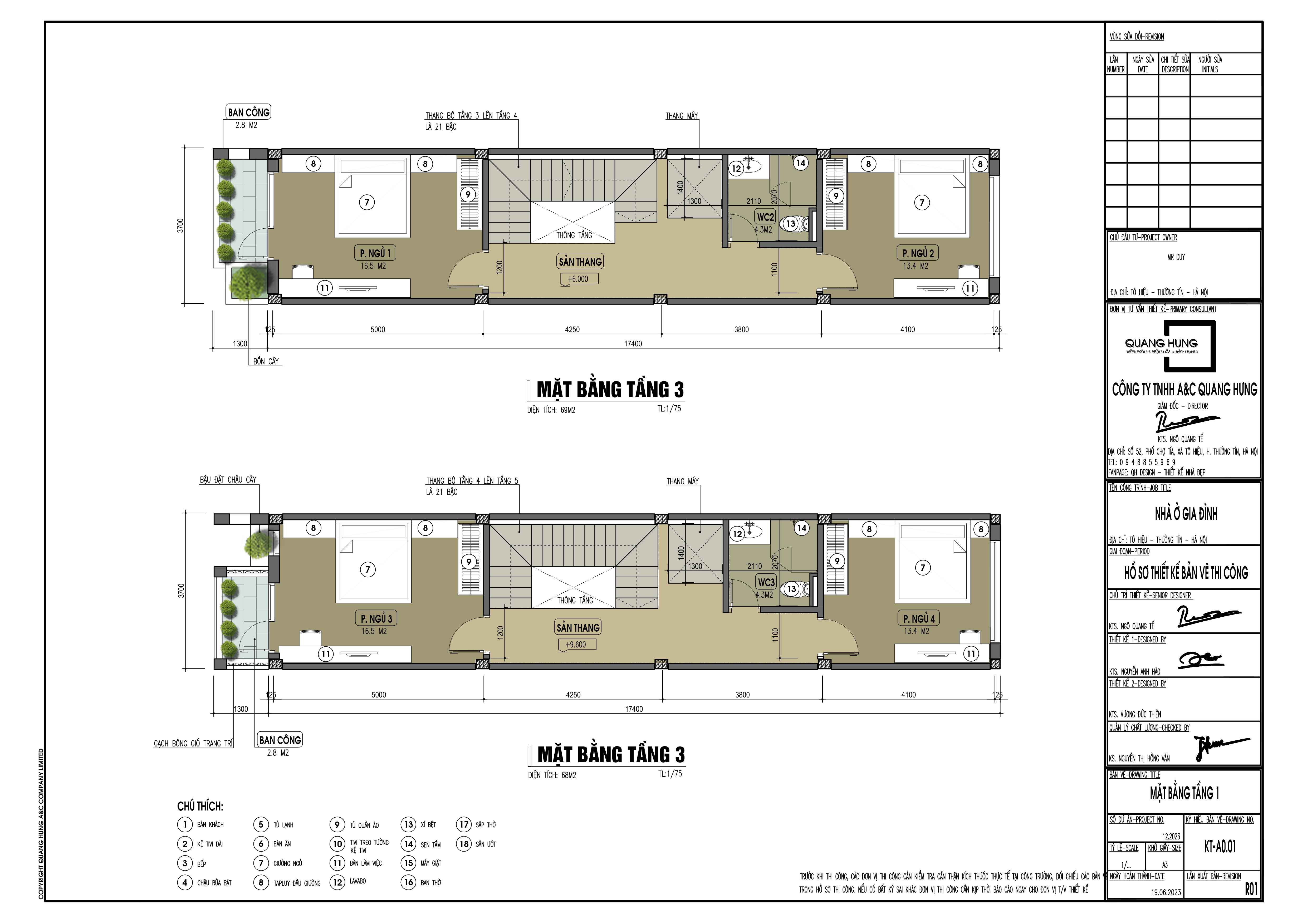
Tầng 3 & 4: Hệ thống phòng ngủ riêng tư
Mỗi tầng được bố trí 02 phòng ngủ (16.5m2 và 13.4m2) với vệ sinh chung tiện lợi.
Khu vực thông tầng giữa nhà giúp đối lưu không khí, đảm bảo các phòng phía trong không bị bí bách.

Tầng 5: Nơi tâm linh và thư giãn
Phòng thờ (12m2): Đặt ở vị trí yên tĩnh, hướng ra sân mái xanh mát.
Sân giặt phơi & Thể dục: Một không gian rộng rãi phía sau để gia đình rèn luyện sức khỏe mỗi ngày.

Tiềm năng kinh doanh: Tầng 1 thiết kế mở, cực kỳ phù hợp làm showroom, văn phòng hoặc spa.
Giao thông thuận tiện: Việc lắp đặt thang máy là giải pháp bền vững cho nhà phố cao tầng (5-6 tầng), phù hợp cho cả người già và trẻ nhỏ.
Không gian sống "xanh": Dù diện tích hẹp nhưng ngôi nhà vẫn sở hữu nhiều khoảng sân cảnh và giếng trời, mang lại chất lượng sống cao cấp.

Giải pháp thiết kế thực tế
Thiết kế dựa trên nhu cầu sinh hoạt của gia đình, không chỉ đẹp mà còn tiện nghi khi sử dụng lâu dài.
Hạn chế phát sinh chi phí
Tư vấn rõ phương án ngay từ đầu, giúp gia chủ kiểm soát ngân sách và tránh chi phí ngoài kế hoạch.
Thi công bám sát thiết kế
TĐảm bảo tính đồng bộ giữa bản vẽ và công trình thực tế, hạn chế sai lệch khi triển khai.
ĐĂNG KÝ BÁO GIÁ