NHÀ PHỐ 7 TẦNG HIỆN ĐẠI 4.8x10.5m, VĂN PHÒNG CHO THUÊ KẾT HỢP CĂN HỘ VÀ QUÁN CAFE
☕🏢 TỔ HỢP VĂN PHÒNG – CĂN HỘ – CAFÉ
“3 TRẢI NGHIỆM – 1 ĐIỂM ĐẾN” GIỮA TRUNG TÂM HÀ NỘI
✨ Một công trình không chỉ để khai thác… mà để “giữ chân dòng tiền”
Nếu phiên bản trước là mô hình cho thuê đa lớp,
thì công trình này được nâng cấp thành:
👉 Mô hình kinh doanh trải nghiệm – giữ khách – tăng giá trị lâu dài
- Khách đến uống café → nhận diện thương hiệu
- Khách thuê văn phòng → tiện ích ngay dưới chân
- Khách ở căn hộ → tận hưởng dịch vụ mỗi ngày
➡️ Một vòng tuần hoàn khép kín:
Khách đến → ở lại → chi tiêu → quay lại

☕ Tầng 1 – CAFÉ: “Nam châm hút khách”
- Không gian mở, mặt kính lớn → thu hút người đi đường
- View phố → lợi thế cực lớn tại Hà Nội
-
Có thể thiết kế:
- Café hiện đại
- Café làm việc (co-working café)
- Café thương hiệu riêng
👉 Vai trò không chỉ là kinh doanh café:
➡️ Mà là tạo traffic miễn phí cho toàn bộ tòa nhà
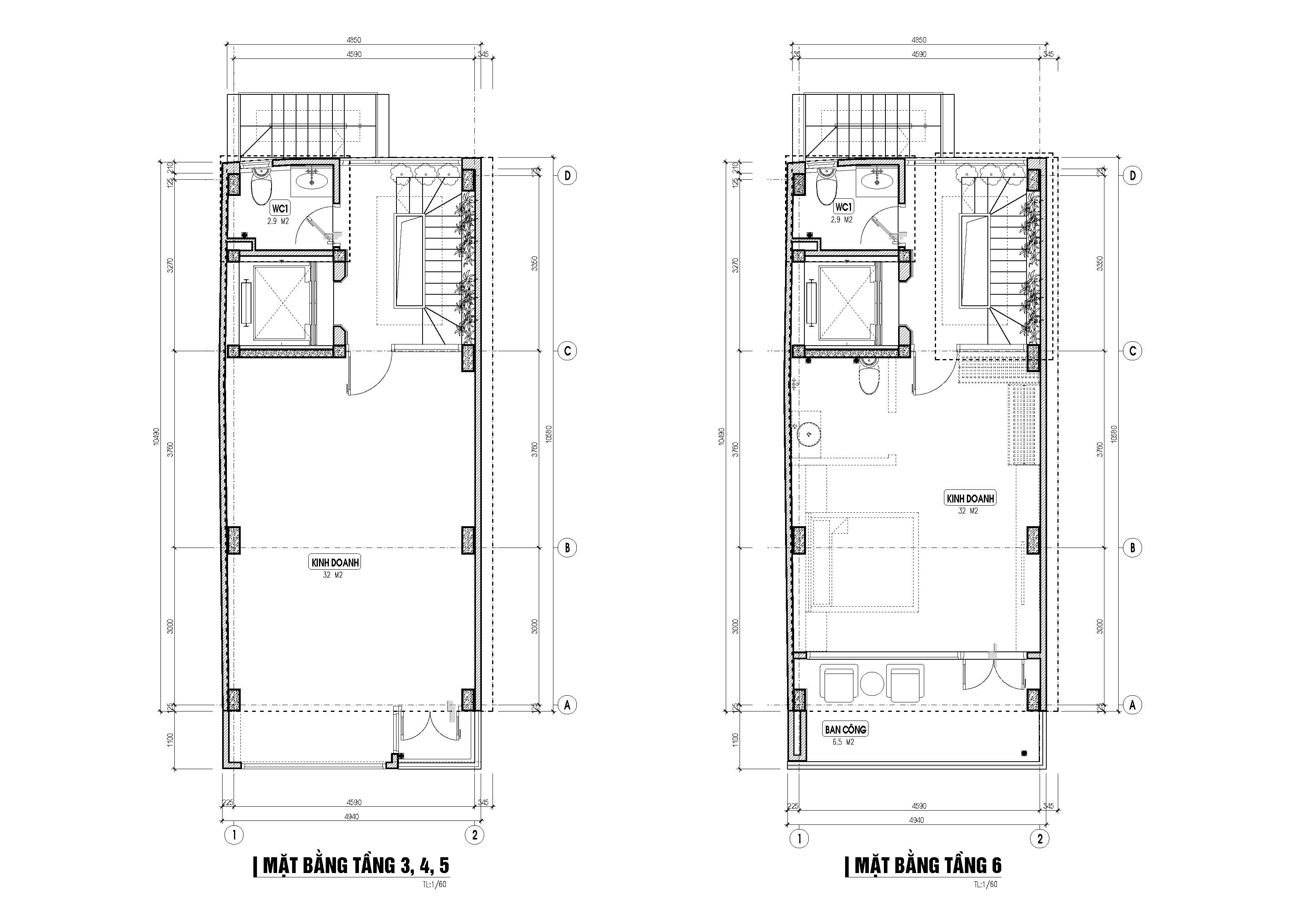
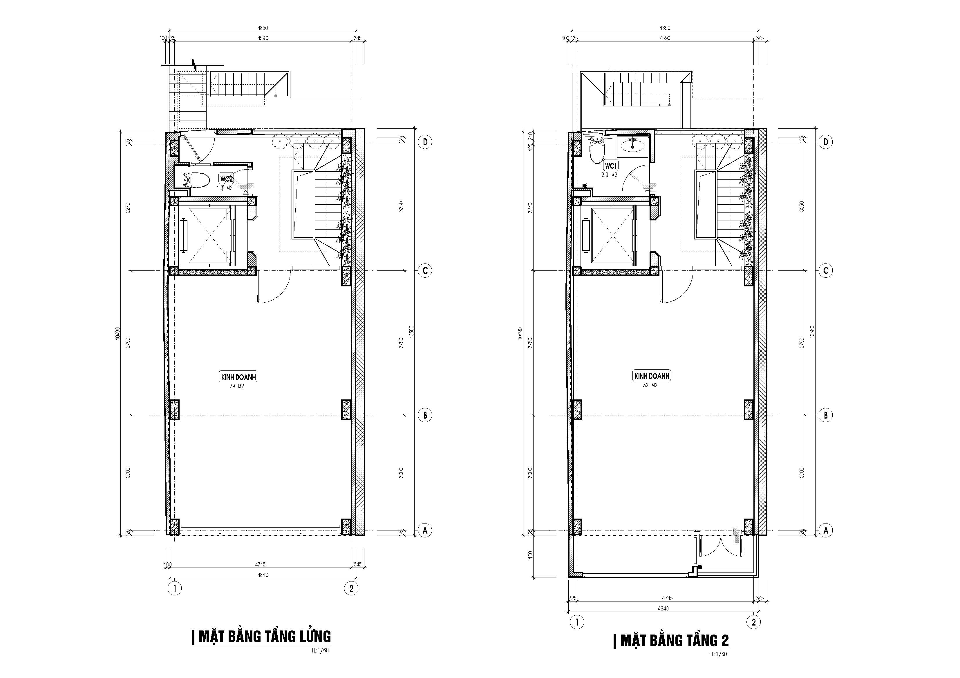
🏢 Tầng 2 – 3: VĂN PHÒNG CHO THUÊ
- Diện tích ~30–32m²/tầng
- Không gian mở, linh hoạt chia nhỏ
- Có WC riêng
👉 Phù hợp:
- Startup
- Agency nhỏ
- Văn phòng đại diện
💡 Điểm mạnh:
- Có café bên dưới → tăng trải nghiệm làm việc
- Dễ lấp đầy – ít trống phòng
🏠 Tầng 4 – 6: CĂN HỘ CHO THUÊ CAO CẤP

🔹 Căn hộ studio (~43m²)
- Full công năng: ngủ – khách – bếp
- Phù hợp: người độc thân, chuyên gia
🔹 Căn hộ 2 phòng ngủ (~20–21m²/phòng)
- Có không gian sinh hoạt chung
- Phù hợp: gia đình nhỏ / thuê ghép
👉 Tối ưu khai thác:
- Cho thuê ngắn hạn (Airbnb)
- Cho thuê dài hạn
- Cho thuê theo phòng

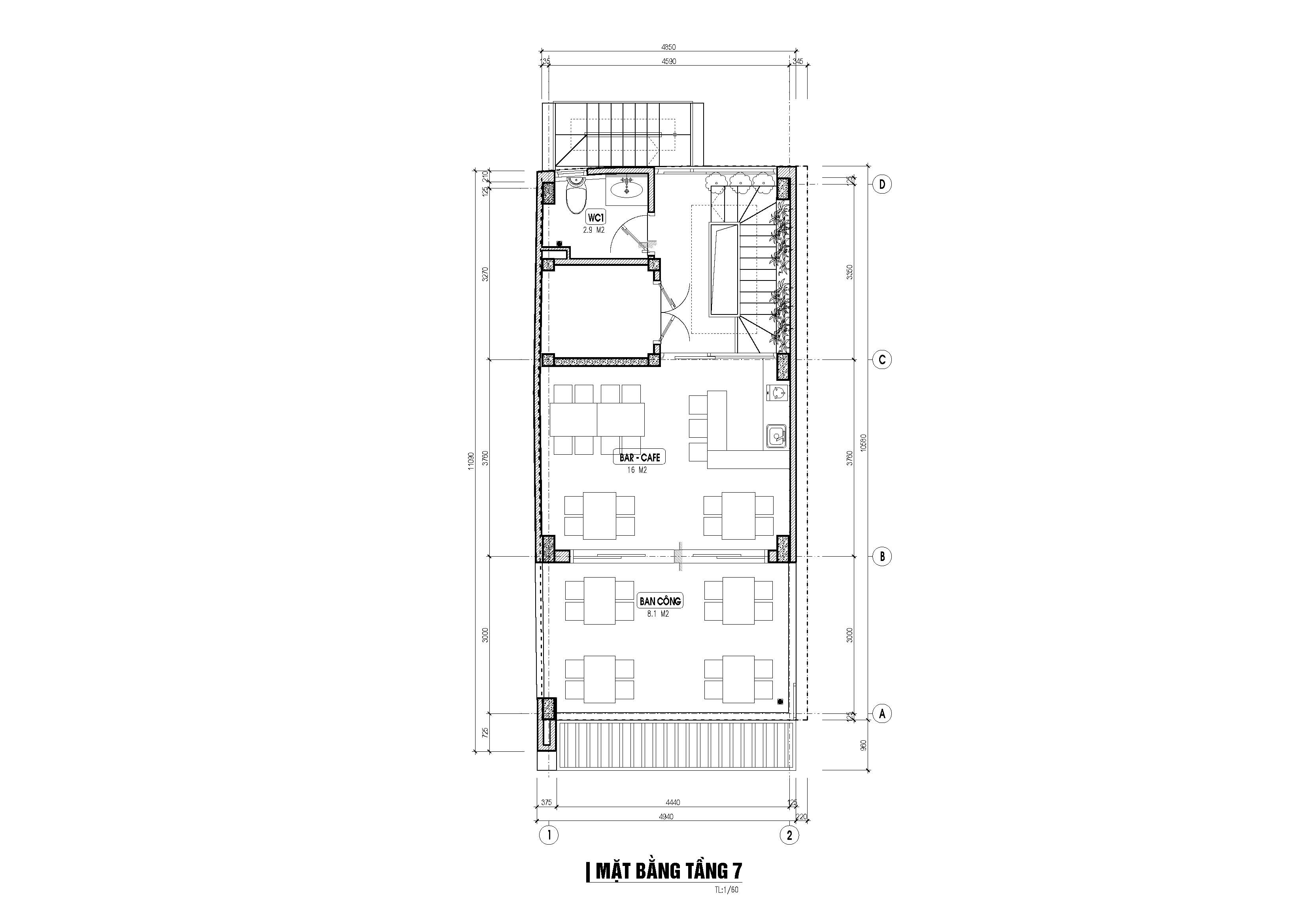
🌿 Tầng 7 – CAFÉ ROOFTOP + KHÔNG GIAN RIÊNG
- Sân trước ~20m² → café ngoài trời / chill
- Bếp + ăn riêng
-
Có thể:
- Là không gian riêng chủ nhà
- Hoặc khai thác thành rooftop café / lounge
👉 Đây là “đòn bẩy lợi nhuận cao”:
- Giá đồ uống cao
- View đẹp → dễ viral
📊 Chiến lược vận hành thông minh
1. Café = Marketing miễn phí
- Thu hút khách → tăng nhận diện
- Tận dụng khách vãng lai → chuyển đổi thuê
2. Văn phòng = Dòng tiền ổn định
- Hợp đồng dài hạn
- Ít biến động
3. Căn hộ = Lợi nhuận cao
- Linh hoạt giá thuê
- Tối ưu theo mùa
➡️ Tổng thể:
Một hệ sinh thái kinh doanh bền vững – không phụ thuộc 1 nguồn thu
🌤️ Điểm “đắt giá” trong thiết kế
- Mặt tiền tân cổ điển → tạo cảm giác “đắt tiền”
- Khối đế riêng biệt → phân tách café & ở
- Giao thông đứng rõ ràng → vận hành dễ
- Tầng trên riêng tư → không ảnh hưởng kinh doanh
🎯 Vì sao mô hình này cực kỳ phù hợp Hà Nội?
- ✔ Lưu lượng người qua lại cao → café dễ sống
- ✔ Nhu cầu văn phòng nhỏ tăng mạnh
- ✔ Căn hộ dịch vụ luôn “khát” nguồn cung
- ✔ Dễ khai thác đa mục đích
- ✔ Phù hợp nhà đầu tư cá nhân – vốn vừa
📞 LỜI KẾT – Đây là “mô hình kiếm tiền”, không chỉ là công trình
Trong thời điểm hiện tại, người xây nhà không chỉ hỏi:
“Nhà có đẹp không?”
Mà hỏi:
“Nhà này có tạo ra tiền không?”
👉 Và công trình này trả lời rất rõ: CÓ – và còn rất nhiều.