🏙️ TỔ HỢP NHÀ Ở – VĂN PHÒNG – CĂN HỘ CHO THUÊ
“MỘT BẤT ĐỘNG SẢN – BA DÒNG TIỀN” GIỮA LÕI ĐÔ THỊ HÀ NỘI
✨ Khi kiến trúc trở thành “cỗ máy tạo dòng tiền”
Nếu những ngôi nhà trước là để ở,
thì công trình này sinh ra để tạo giá trị liên tục.
Đây không đơn thuần là một ngôi nhà…
👉 Mà là một mô hình kinh doanh bất động sản hoàn chỉnh:
- Tầng dưới → Văn phòng cho thuê (dòng tiền ổn định)
- Các tầng giữa → Căn hộ dịch vụ (dòng tiền linh hoạt, biên lợi nhuận cao)
- Tầng trên → Không gian ở riêng (giữ giá trị lâu dài)
➡️ Một công trình – vận hành như một “hệ sinh thái tài chính”.
🧱 Mặt tiền – Ngôn ngữ của “giá trị & đẳng cấp”
- Phong cách tân cổ điển tối giản (Neo-classic refined)
- Tone trắng chủ đạo → biểu tượng của sự bền vững & cao cấp
- Hệ cột đứng + phào chỉ nhẹ → tạo nhịp điệu kiến trúc
- Khối đế ốp đá → tăng cảm giác “tài sản có giá trị”
👉 Khách thuê nhìn vào là thấy uy tín
👉 Chủ đầu tư nhìn vào là thấy khả năng sinh lời
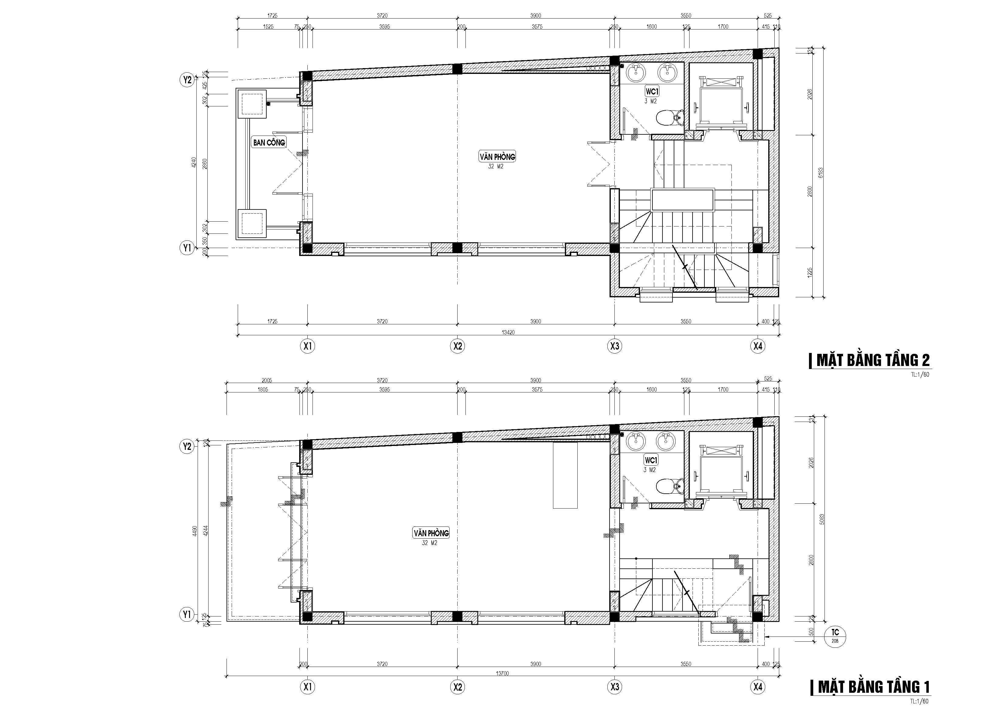
🏢 Công năng – Phân tầng thông minh, tối đa hóa lợi nhuận




🔹 Tầng 1 – 2: KHÔNG GIAN VĂN PHÒNG (~32m²/tầng)
- Không gian mở, dễ chia layout
- Có WC riêng từng tầng
- Phù hợp: startup, văn phòng nhỏ, studio
👉 Dòng tiền ổn định – ít biến động
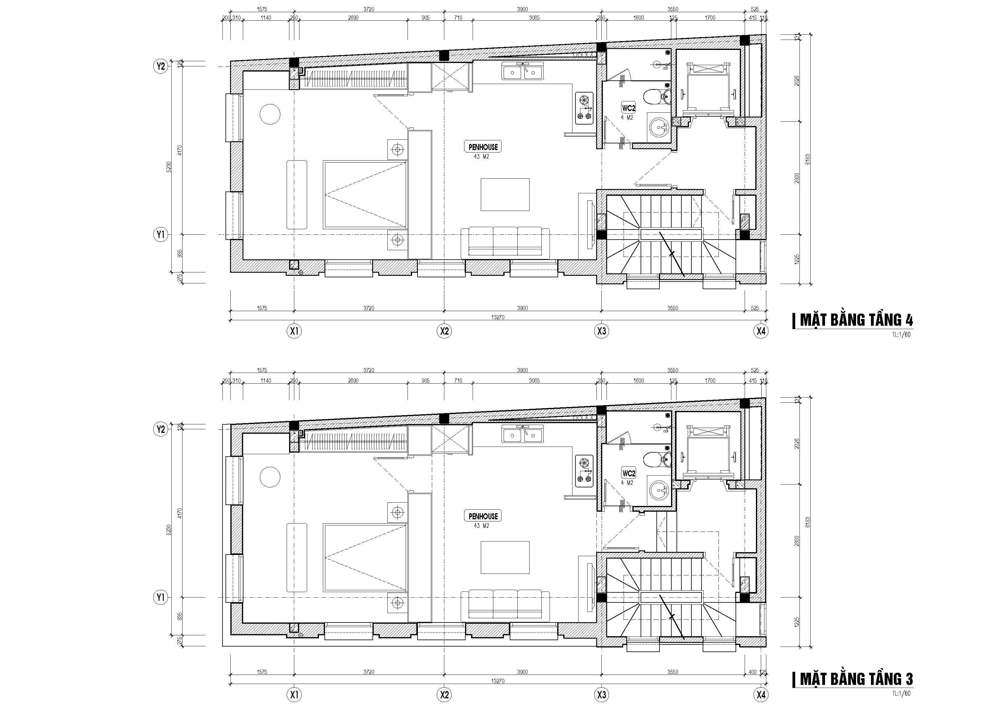
🔹 Tầng 3 – 4: CĂN HỘ CHO THUÊ (PENTHOUSE MINI)
- Diện tích ~43m²
- Có bếp + khu sinh hoạt + ngủ
- Thiết kế như “mini apartment cao cấp”
👉 Nhắm tới khách:
- Người đi làm
- Chuyên gia nước ngoài
- Người độc thân thu nhập khá
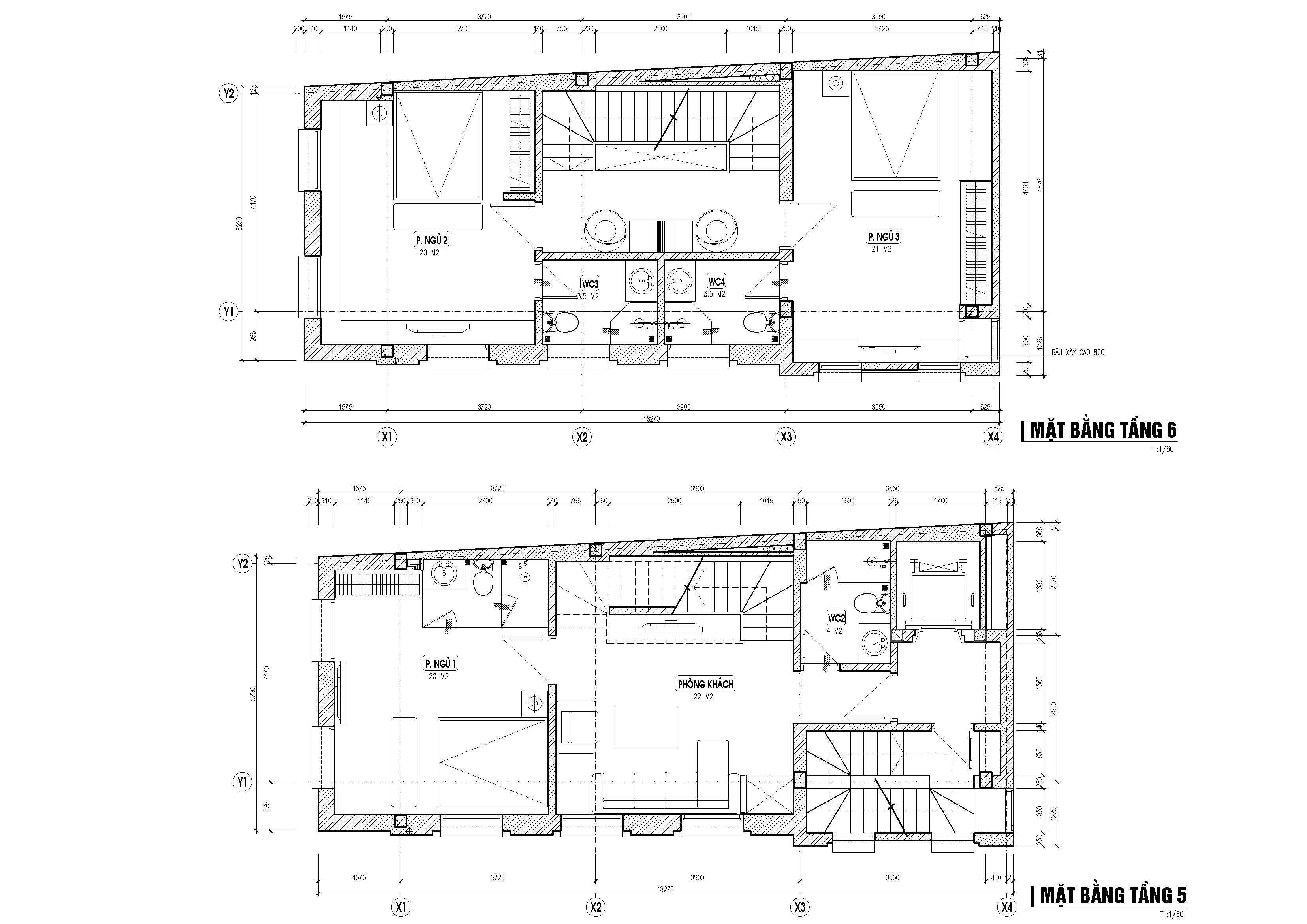
🔹 Tầng 5 – 6: CĂN HỘ GIA ĐÌNH / CHO THUÊ DÀI HẠN
- 2 phòng ngủ/tầng (~20–21m²/phòng)
- WC riêng
- Không gian sinh hoạt chung
👉 Tối ưu:
- Cho thuê theo phòng
- Hoặc thuê nguyên căn
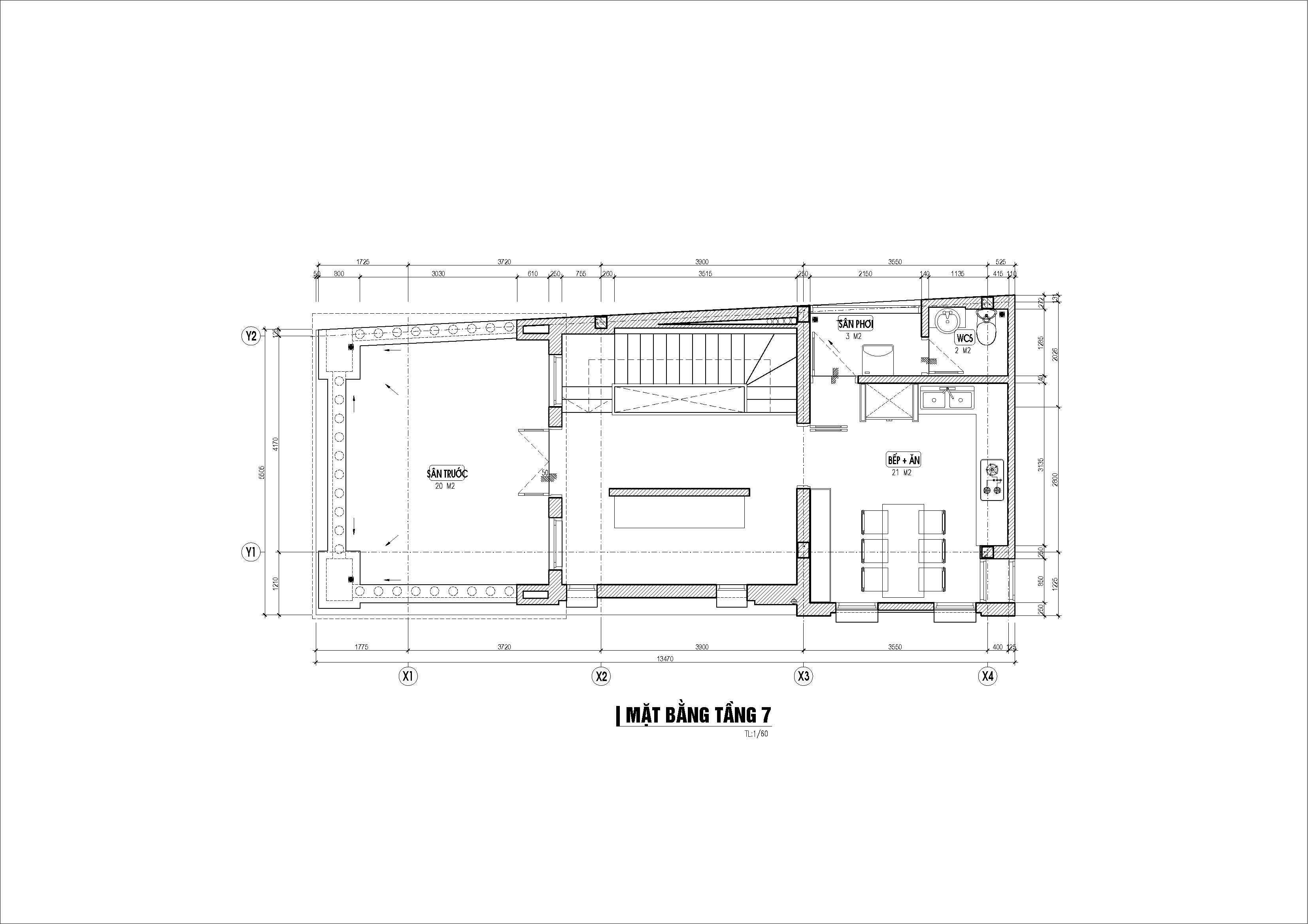
🔹 Tầng 7: KHÔNG GIAN RIÊNG CHỦ NHÀ
- Bếp + ăn rộng ~21m²
- Sân trước lớn ~20m² (cực kỳ giá trị tại Hà Nội)
- Sân phơi + khu phụ
👉 Đây là “phần thưởng” cho chủ đầu tư:
- Vừa kinh doanh
- Vừa tận hưởng
📊 Phân tích “3 dòng tiền” của công trình
| Khu vực |
Công năng |
Đặc điểm dòng tiền |
| Tầng 1–2 |
Văn phòng |
Ổn định, dài hạn |
| Tầng 3–4 |
Căn hộ dịch vụ |
Lợi nhuận cao |
| Tầng 5–6 |
Căn hộ thuê |
Linh hoạt |
| Tầng 7 |
Chủ ở |
Gia tăng giá trị tài sản |
👉 Tổng thể:
Một công trình – nhiều nguồn thu – giảm rủi ro đầu tư
🌤️ Giá trị thiết kế ẩn bên trong
- Giếng trời + thông tầng → giảm chi phí điện
- Hành lang gọn → tối đa diện tích khai thác
- Kết cấu lặp → tối ưu chi phí xây dựng
- Mặt tiền “giữ giá” → dễ cho thuê & bán lại
➡️ Đây là thiết kế không chỉ đẹp… mà còn rất “tỉnh” về kinh tế.
🎯 Vì sao mô hình này cực hợp Hà Nội?
- ✔ Đất nhỏ nhưng giá cao → cần tối đa hóa công năng
- ✔ Nhu cầu thuê lớn (văn phòng + căn hộ)
- ✔ Dễ khai thác lâu dài
- ✔ Phù hợp nhà đầu tư cá nhân
- ✔ Có thể vận hành linh hoạt theo thị trường
📞 LỜI KẾT – Đây không phải là “nhà”… mà là “tài sản”
Nếu bạn đang tìm một công trình:
- Không chỉ để ở
- Không chỉ để đẹp
- Mà phải tạo ra tiền mỗi tháng
👉 Thì đây chính là mô hình bạn nên làm.