🏡 NHÀ PHỐ 3 TẦNG CAO CẤP – CHUẨN MỰC SỐNG THƯỢNG LƯU GIỮA LÒNG HÀ NỘI



✨ Khi kiến trúc không chỉ là nơi ở – mà là tuyên ngôn đẳng cấp
Trong phân khúc khách hàng cao cấp, một ngôi nhà không đơn thuần là nơi sinh sống, là biểu tượng của gu thẩm mỹ, vị trí và phong cách sống . Công cụ này được xây dựng dành riêng cho các chủ đề cao cấp về tinh tế, đặc biệt và trải nghiệm tiêu chuẩn cuộc sống.
Với ngôn ngữ Chủ nghĩa tối giản sang trọng hiện đại , công thức khẳng định dấu ấn qua:
- Đường cong kiến trúc thương mại – độc bản, không đại trà
- Hệ thống tiền đơn giản nhưng giác quan sâu sắc
- Vật liệu cao cấp nhất: kính, kim loại sơn tĩnh điện, đá hoàn thiện cao cấp
- Thiết kế mở, tối ưu ánh sáng – gió – thiên nhiên
👉Đây là một sản phẩm kiến trúc cá nhân hóa , không dành cho số đông.
📐 THÔNG SỐ CAO CẤP – TỐI ƯU GIÁ TRỊ BẤT ĐỘNG SẢN PHẨM
- Diện tích đất: ~ 80m²
- Kích thước: ~ 5,5m x 14,4m
- Quy mô: 3 tầng + sân thượng
- Công năng: Gara ô tô, 3 phòng ngủ, phòng sinh hoạt, phòng thờ, gym tại nhà
- Định hướng thiết kế: Luxury Urban Living – cuộc sống chuẩn nghỉ dưỡng trong lòng đô thị
👉 Phù hợp với:
- Gia chủ thành đạt, doanh nhân, chuyên gia
- Khách hàng yêu cầu thiết kế độc bản – không lặp lại
- Người cao trải nghiệm sống & giá trị lâu dài
🧠 GIẢI PHÁP THIẾT KẾ – TINH CHỈNH CHO KHÁCH HÀNG CAO CẤP
🔹 Tầng 1 – Không thể tiếp nhận và kết nối

- Gara ô tô riêng biệt (~22m²) – đảm bảo riêng tư & an ninh
- Cao cấp thiết kế khách hàng tiếp theo
- Không gian bếp – ăn mở, liền mạch
- Khu phụ đặc biệt – hoạt động sinh hoạt tối ưu
👉 Trải nghiệm tiếp theo sang trọng – lưu thông tin không tiếp nối
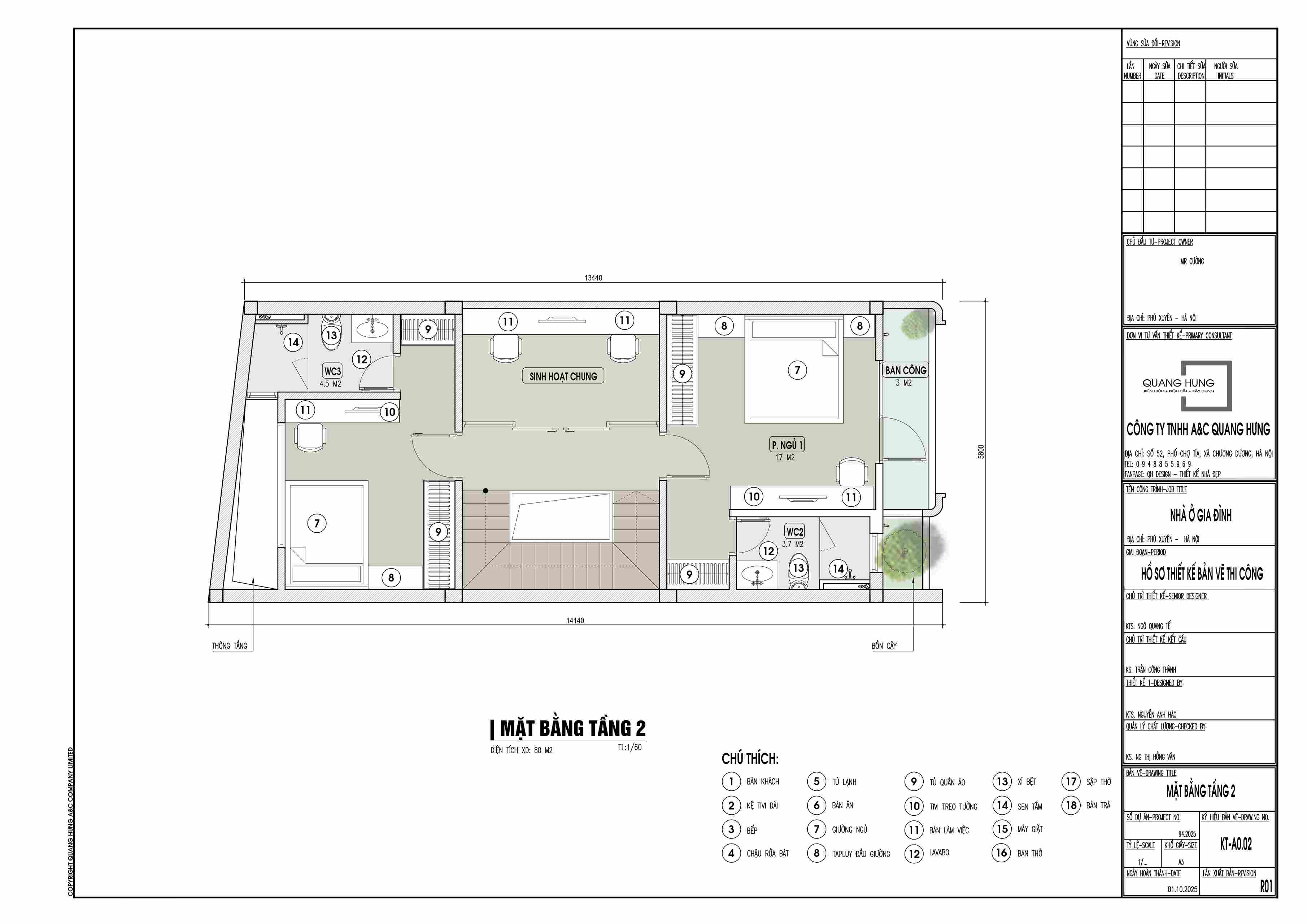
🔹 Tầng 2 – Không gian nghỉ dưỡng cá nhân

- Phòng ngủ master rộng (~17m²) với ban công xanh
- Phòng ngủ phụ thiết kế linh hoạt (con cái / khách)
- Không gian sinh hoạt chung – tăng kết nối gia đình
- WC tiêu chuẩn cao
👉 Mỗi phòng ngủ là một không gian nghỉ dưỡng riêng tư
🔹 Tầng 3 – Không tái tạo năng lượng

- Phòng thờ riêng biệt (~21m²) – chuẩn phong thủy
- Phòng gym tại nhà (~13m²) – Chăm sóc sức khỏe
- Sân khấu & sân thượng xanh (~22m²)
👉 Không dành thời gian cho thể chất – tinh thần – sự cân bằng cuộc sống
🌿 TRIẾT LÝ KIẾN TRÚC CAO CẤP
- Ít nhưng chất – tối giản để tôn vinh vật liệu & ánh sáng
- Cá nhân hóa – mỗi chi tiết đều phản ánh gu của chủ nhà
- Kiên trì – thông gió tự nhiên, giảm tiêu thụ năng lượng
- Đầu tư dài hạn – tăng giá trị bất động sản theo thời gian